S&Y/2階 19.32坪 物件コード:C405601
- 電話で取り急ぎ物件情報を聞く
- 0120-366-200
- 物件コードを電話でお伝えください
物件コード:C405601
ストリートビューを表示 ▼
- この物件の賃料の価格帯(共益費込)
- @8,001円/坪~@12,000円/坪
S&Yのその他の募集階
|
|
賃料はこの物件の価格帯を表示しています。詳しい情報は電話・メールでお問い合わせください!
物件概要
| 物件名 | S&Y | ||
|---|---|---|---|
| 住所 | 大阪府大阪市北区天神橋6丁目4番11号
南森町でよく検索されるその他の物件 |
||
| 構造 (規模) | 鉄骨造地上5階建 | ||
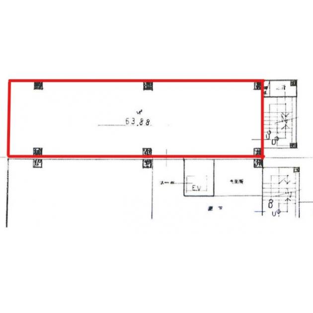
| 坪数 | 19.32坪 | 築年月 | 1993年2月1日 |
| 階数 | 2階 | 空調タイプ | 個別 |
| 保証金 | - | ||
| 敷金 | 賃料の6カ月分 | 礼金 | - |
| 沿線・最寄駅 |
地下鉄谷町線 天神橋筋六丁目駅 徒歩3分 (天神橋筋六丁目駅の賃貸事務所) 地下鉄堺筋線 扇町駅 徒歩3分 (扇町駅の賃貸事務所) JR大阪環状線 天満駅 徒歩4分 (天満駅の賃貸事務所) |
||
| 設備詳細 |
|
||
| EV基数 | 1基 | 人荷EV基数 | - |
| こだわり条件 |
|
||
| 備考 | |||
| アクセス | 新大阪駅まで電車16分 大阪駅梅田駅まで電車10分 関西空港まで電車55分、車45分 伊丹空港まで車20分 高速入口:環状線南森町・扇町入口 |
||
この物件の募集フロア
S&Y
- この物件へのお問い合わせはこちら


〒541-0048
大阪市中央区瓦町3丁目4番3号
瓦町公洋ビル6階
TEL:06-6231-4600
FAX:06-6231-4630
- 電話で取り急ぎ物件情報を聞く

- 物件コード:C405601
- 物件コードを電話でお伝えください
類似物件のご紹介
「S&Y」とエリア、賃料、広さが類似した物件をご紹介しております。
エレガントビル大阪
- 大阪府大阪市北区天神橋6丁目6番11号
- 22.4坪(74.05m²)
- @8,001円/坪
~@12,000円/坪 -
地下鉄谷町線 天神橋筋六丁目駅 徒歩1分
地下鉄堺筋線 扇町駅 徒歩4分
マツウラ
- 大阪府大阪市北区西天満4丁目2番15号
- 18.89坪(62.45m²)
- @8,001円/坪
~@12,000円/坪 -
京阪線(本線・中之島線) なにわ橋駅 徒歩5分
地下鉄谷町線 南森町駅 徒歩7分
マッセ梅田ビル2号館
- 大阪府大阪市北区西天満6丁目2番14号
- 16.5坪(54.55m²)
- @8,001円/坪
~@12,000円/坪 -
地下鉄谷町線 東梅田駅 徒歩8分
地下鉄堺筋線 南森町駅 徒歩6分
協和中之島
- 大阪府大阪市北区西天満1丁目7番4号
- 22.96坪(75.90m²)
- @8,001円/坪
~@12,000円/坪 -
京阪線(本線・中之島線) なにわ橋駅 徒歩3分
地下鉄堺筋線 北浜駅 徒歩4分
西天満第11松屋
- 大阪府大阪市北区西天満1丁目10番8号
- 19.69坪(65.09m²)
- @8,001円/坪
~@12,000円/坪 -
京阪線(本線・中之島線) なにわ橋駅 徒歩4分
地下鉄谷町線 南森町駅 徒歩7分








