マニュライフプレイス堂島/10階 32.13坪 物件コード:C304110
- 電話で取り急ぎ物件情報を聞く
- 0120-366-200
- 物件コードを電話でお伝えください
物件コード:C304110


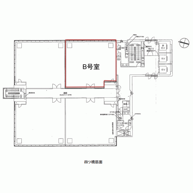
間取り図
おすすめポイント

- マニュライフ堂島ビルは四ツ橋筋に面して建つ角ビルです。「ロングライフビル」をテーマに設計されており、ハード面では制震構造を備えており万一の地震にも安心です。外観はガラスのカーテンウォールに包まれ、スマートで洗練された印象のビルです。
ストリートビューを表示 ▼
- この物件の賃料の価格帯(共益費込)
- @20,001円/坪~@30,000円/坪
マニュライフプレイス堂島のその他の募集階
賃料はこの物件の価格帯を表示しています。詳しい情報は電話・メールでお問い合わせください!
物件概要
| 物件名 | マニュライフプレイス堂島 | ||
|---|---|---|---|
| 住所 | 大阪府大阪市北区堂島浜1丁目4番19号
梅田・西梅田・堂島・福島でよく検索されるその他の物件 |
||
| 構造 (規模) | 鉄骨鉄筋コンクリート造陸屋根地上12階地下1階建 | ||
| 坪数 | 32.13坪 | 築年月 | 2007年9月1日 |
| 階数 | 10階 | 空調タイプ | 個別 |
| 保証金 | - | ||
| 敷金 | 賃料の12カ月分 | 礼金 | - |
| 沿線・最寄駅 |
地下鉄四つ橋線 西梅田駅 徒歩4分 (西梅田駅の賃貸事務所) JR東西線 北新地駅 徒歩3分 (北新地駅の賃貸事務所) 京阪線(本線・中之島線) 渡辺橋駅 徒歩3分 (渡辺橋駅の賃貸事務所) |
||
| 設備詳細 |
|
||
| EV基数 | 3基 | 人荷EV基数 | - |
| こだわり条件 |
|
||
| 備考 | |||
| アクセス | 新大阪駅まで電車18分 大阪駅梅田駅まで電車12分 関西空港まで電車61分、車45分 伊丹空港まで車20分 高速入口:環状線堂島・中之島入口 |
||
この物件の募集フロア
マニュライフプレイス堂島
- この物件へのお問い合わせはこちら


〒541-0048
大阪市中央区瓦町3丁目4番3号
瓦町公洋ビル6階
TEL:06-6231-4600
FAX:06-6231-4630
- 電話で取り急ぎ物件情報を聞く

- 物件コード:C304110
- 物件コードを電話でお伝えください
類似物件のご紹介
「マニュライフプレイス堂島」とエリア、賃料、広さが類似した物件をご紹介しております。
梅田スカイビルタワーウエスト
- 大阪府大阪市北区大淀中1丁目1番30号
- 26.15坪(86.45m²)
- @20,001円/坪
~@30,000円/坪 -
JR大阪環状線 大阪駅 徒歩6分
地下鉄御堂筋線 梅田駅 徒歩7分
中之島フェスティバルタワーウエスト
- 大阪府大阪市北区中之島3丁目2番4号
- 38.44坪(127.07m²)
- @20,001円/坪
~@30,000円/坪 -
地下鉄四つ橋線 肥後橋駅 徒歩2分
京阪線(本線・中之島線) 大江橋駅 徒歩1分
中之島フェスティバルタワー
- 大阪府大阪市北区中之島2丁目3番18号
- 33.21坪(109.79m²)
- @20,001円/坪
~@30,000円/坪 -
地下鉄四つ橋線 西梅田駅 徒歩3分
地下鉄御堂筋線 淀屋橋駅 徒歩5分
JRE梅田スクエア
- 大阪府大阪市北区梅田1丁目12番17号
- 35.153坪(116.21m²)
- @20,001円/坪
~@30,000円/坪 -
地下鉄谷町線 東梅田駅 徒歩1分
JR大阪環状線 大阪駅 徒歩2分
梅田スカイビルタワーウエスト
- 大阪府大阪市北区大淀中1丁目1番30号
- 26.15坪(86.45m²)
- @20,001円/坪
~@30,000円/坪 -
JR大阪環状線 大阪駅 徒歩6分
地下鉄御堂筋線 梅田駅 徒歩7分






