堂島プラザ/7階 60.54坪 物件コード:C303115
- 電話で取り急ぎ物件情報を聞く
- 0120-366-200
- 物件コードを電話でお伝えください
物件コード:C303115


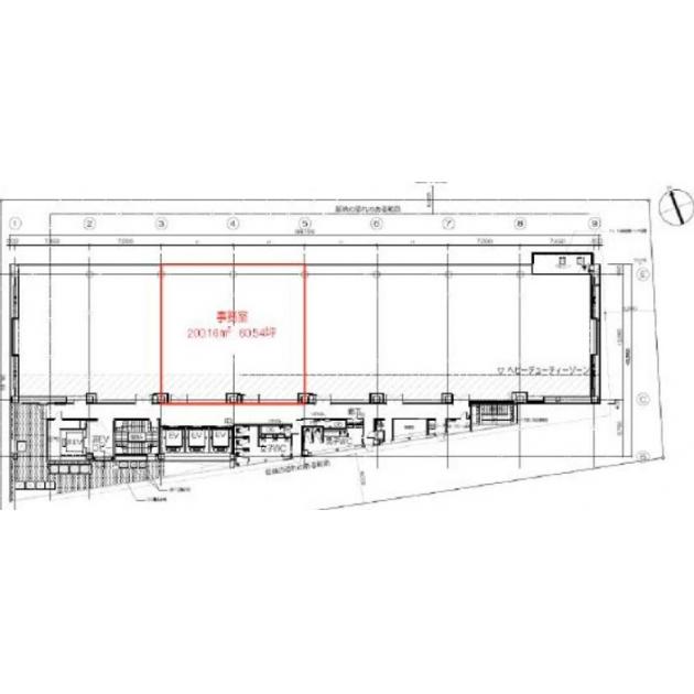
間取り図
おすすめポイント

- 大阪メトロ四つ橋線「西梅田駅」徒歩4分の立地に位置するビル。堂島地下街と直結し、JR・地下鉄などの各ターミナルへアクセスでき、新たなビジネスステージに相応しい充実した環境です。基準階面積約の240坪の貸室は4分割が可能なため、様々なニーズにお応えできます。
ストリートビューを表示 ▼
- この物件の賃料の価格帯(共益費込)
- この部屋は成約済みです
堂島プラザのその他の募集階
|
|
賃料はこの物件の価格帯を表示しています。詳しい情報は電話・メールでお問い合わせください!
物件概要
| 物件名 | 堂島プラザ | ||
|---|---|---|---|
| 住所 | 大阪府大阪市北区堂島1丁目5番30号 | ||
| 構造 (規模) | 鉄骨鉄筋コンクリート造地上12地下2階建 | ||
| 坪数 | 60.54坪 | 築年月 | 2010年2月 |
| 階数 | 7階 | 空調タイプ | 個別 |
| 保証金 | - | ||
| 敷金 | - | 礼金 | - |
| 沿線・最寄駅 |
地下鉄四つ橋線 西梅田駅 徒歩4分 (西梅田駅の賃貸事務所) JR東西線 北新地駅 徒歩3分 (北新地駅の賃貸事務所) JR大阪環状線 大阪駅 徒歩7分 (大阪駅の賃貸事務所) |
||
| 設備詳細 |
|
||
| EV基数 | 3基 | 人荷EV基数 | 1基 |
| こだわり条件 |
|
||
| 備考 | |||
| アクセス | 新大阪駅まで電車13分 大阪駅梅田駅まで電車7分 関西空港まで電車58分、車45分 伊丹空港まで車20分 高速入口:環状線堂島・梅田入口 |
||
この物件の募集フロア
堂島プラザ
- この物件へのお問い合わせはこちら


〒541-0048
大阪市中央区瓦町3丁目4番3号
瓦町公洋ビル6階
TEL:06-6231-4600
FAX:06-6231-4630
- 電話で取り急ぎ物件情報を聞く

- 物件コード:C303115
- 物件コードを電話でお伝えください
類似物件のご紹介
「堂島プラザ」とエリア、賃料、広さが類似した物件をご紹介しております。
明治安田生命大阪梅田
- 大阪府大阪市北区梅田3丁目3番20号
- 71.13坪(235.14m²)
- @20,001円/坪
~@30,000円/坪 -
地下鉄四つ橋線 西梅田駅 徒歩3分
JR大阪環状線 大阪駅 徒歩6分
明治安田生命大阪梅田
- 大阪府大阪市北区梅田3丁目3番20号
- 71.13坪(235.14m²)
- @20,001円/坪
~@30,000円/坪 -
地下鉄四つ橋線 西梅田駅 徒歩3分
JR大阪環状線 大阪駅 徒歩6分
中之島フェスティバルタワー
- 大阪府大阪市北区中之島2丁目3番18号
- 49.82坪(164.69m²)
- @20,001円/坪
~@30,000円/坪 -
地下鉄四つ橋線 西梅田駅 徒歩3分
地下鉄御堂筋線 淀屋橋駅 徒歩5分
明治安田生命大阪梅田
- 大阪府大阪市北区梅田3丁目3番20号
- 71.13坪(235.14m²)
- @20,001円/坪
~@30,000円/坪 -
地下鉄四つ橋線 西梅田駅 徒歩3分
JR大阪環状線 大阪駅 徒歩6分






