梅新21/4階 17.54坪 物件コード:C206203
- 電話で取り急ぎ物件情報を聞く
- 0120-366-200
- 物件コードを電話でお伝えください
物件コード:C206203
ストリートビューを表示 ▼
- この物件の賃料の価格帯(共益費込)
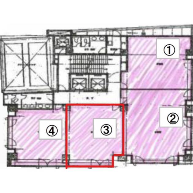
- この部屋は成約済みです
梅新21のその他の募集階
|
|
賃料はこの物件の価格帯を表示しています。詳しい情報は電話・メールでお問い合わせください!
物件概要
| 物件名 | 梅新21 | ||
|---|---|---|---|
| 住所 | 大阪府大阪市北区曽根崎2丁目2番1号 | ||
| 構造 (規模) | 鉄筋鉄骨コンクリート造地上10階地下2階 | ||
| 坪数 | 17.54坪 | 築年月 | 1987年1月1日 |
| 階数 | 4階 | 空調タイプ | 個別 |
| 保証金 | - | ||
| 敷金 | - | 礼金 | - |
| 沿線・最寄駅 |
地下鉄谷町線 東梅田駅 徒歩4分 (東梅田駅の賃貸事務所) 地下鉄御堂筋線 梅田駅 徒歩6分 (梅田駅の賃貸事務所) JR東西線 北新地駅 徒歩4分 (北新地駅の賃貸事務所) |
||
| 設備詳細 |
|
||
| EV基数 | 2基 | 人荷EV基数 | - |
| こだわり条件 |
|
||
| 備考 | |||
| アクセス | 新大阪駅まで電車13分 大阪駅梅田駅まで電車7分 関西空港まで電車61分、車45分 伊丹空港まで車20分 高速入口:環状線南森町・堂島入口 |
||
この物件の募集フロア
梅新21
- この物件へのお問い合わせはこちら


〒541-0048
大阪市中央区瓦町3丁目4番3号
瓦町公洋ビル6階
TEL:06-6231-4600
FAX:06-6231-4630
- 電話で取り急ぎ物件情報を聞く

- 物件コード:C206203
- 物件コードを電話でお伝えください
類似物件のご紹介
「梅新21」とエリア、賃料、広さが類似した物件をご紹介しております。
klimtBLD
- 大阪府大阪市北区西天満2丁目9番4号
- 20.78坪(68.69m²)
- @12,001円/坪
~@15,000円/坪 -
JR東西線 北新地駅 徒歩5分
京阪線(本線・中之島線) 大江橋駅 徒歩5分
GAZELLE RIO.6 EAST
- 大阪府大阪市北区天神橋6丁目5番24号
- 17.55坪(58.02m²)
- @12,001円/坪
~@15,000円/坪 -
地下鉄谷町線 天神橋筋六丁目駅 徒歩2分
地下鉄堺筋線 天神橋筋六丁目駅 徒歩2分








