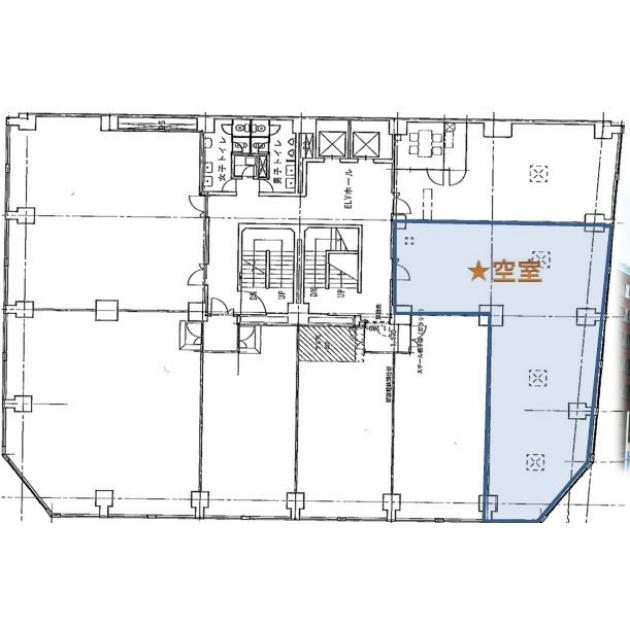
大阪弁護士/3階 37.01坪 物件コード:C201622
- 電話で取り急ぎ物件情報を聞く
- 0120-366-200
- 物件コードを電話でお伝えください
物件コード:C201622
ストリートビューを表示 ▼
- この物件の賃料の価格帯(共益費込)
- 相談
大阪弁護士のその他の募集階
賃料はこの物件の価格帯を表示しています。詳しい情報は電話・メールでお問い合わせください!
物件概要
| 物件名 | 大阪弁護士 | ||
|---|---|---|---|
| 住所 | 大阪府大阪市北区西天満6丁目7番4号
梅田・南森町でよく検索されるその他の物件 |
||
| 構造 (規模) | 鉄骨鉄筋コンクリート造地上9階地下1階建 | ||
| 坪数 | 37.01坪 | 築年月 | 1972年3月1日 |
| 階数 | 3階 | 空調タイプ | 個別 |
| 保証金 | - | ||
| 敷金 | 相談 | 礼金 | - |
| 沿線・最寄駅 |
地下鉄谷町線 東梅田駅 徒歩9分 (東梅田駅の賃貸事務所) JR東西線 北新地駅 徒歩6分 (北新地駅の賃貸事務所) 地下鉄谷町線 南森町駅 徒歩6分 (南森町駅の賃貸事務所) |
||
| 設備詳細 |
|
||
| EV基数 | 2基 | 人荷EV基数 | - |
| こだわり条件 |
|
||
| 備考 | |||
| アクセス | 新大阪駅まで電車18分 大阪駅梅田駅まで電車12分 関西空港まで電車59分、車45分 伊丹空港まで車20分 高速入口:環状線南森町・高麗橋入口 |
||
この物件の募集フロア
大阪弁護士
- この物件へのお問い合わせはこちら


〒541-0048
大阪市中央区瓦町3丁目4番3号
瓦町公洋ビル6階
TEL:06-6231-4600
FAX:06-6231-4630
- 電話で取り急ぎ物件情報を聞く

- 物件コード:C201622
- 物件コードを電話でお伝えください
類似物件のご紹介
「大阪弁護士」とエリア、賃料、広さが類似した物件をご紹介しております。
イトーピア扇町
- 大阪府大阪市北区天神橋4丁目7番13号
- 39.98坪(132.17m²)
- @12,001円/坪
~@15,000円/坪 -
地下鉄堺筋線 扇町駅 徒歩1分
地下鉄谷町線 天神橋筋六丁目駅 徒歩5分
中津第2リッチ
- 大阪府大阪市北区中津1丁目15番15号
- 34.28坪(113.32m²)
- @12,001円/坪
~@15,000円/坪 -
地下鉄御堂筋線 中津駅 徒歩1分
地下鉄御堂筋線 梅田駅 徒歩8分
大阪JA
- 大阪府大阪市北区西天満1丁目2番5号
- 37.04坪(122.45m²)
- @12,001円/坪
~@15,000円/坪 -
地下鉄堺筋線 北浜駅 徒歩3分
京阪線(本線・中之島線) なにわ橋駅 徒歩5分
梅田プラザビル本館
- 大阪府大阪市北区西天満4丁目3番25号
- 37.88坪(125.22m²)
- @8,001円/坪
~@12,000円/坪 -
地下鉄堺筋線 南森町駅 徒歩5分
地下鉄谷町線 南森町駅 徒歩5分








