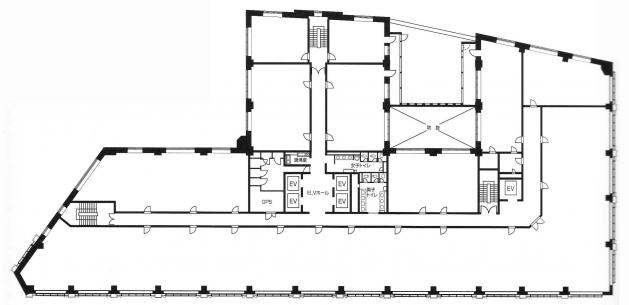
堂島ビルヂング/3階 31.28坪 物件コード:C201209
- 電話で取り急ぎ物件情報を聞く
- 0120-366-200
- 物件コードを電話でお伝えください
物件コード:C201209
ストリートビューを表示 ▼
- この物件の賃料の価格帯(共益費込)
- この部屋は成約済みです
堂島ビルヂングのその他の募集階
|
続きを表示 ▼ |
賃料はこの物件の価格帯を表示しています。詳しい情報は電話・メールでお問い合わせください!
物件概要
| 物件名 | 堂島ビルヂング | ||
|---|---|---|---|
| 住所 | 大阪府大阪市北区西天満2丁目6番8号 | ||
| 構造 (規模) | 鉄骨鉄筋コンクリート造地上9階地下1階建 | ||
| 坪数 | 31.28坪 | 築年月 | 1923年1月1日 |
| 階数 | 3階 | 空調タイプ | 個別 |
| 保証金 | - | ||
| 敷金 | - | 礼金 | - |
| 沿線・最寄駅 |
地下鉄御堂筋線 淀屋橋駅 徒歩5分 (淀屋橋駅の賃貸事務所) 地下鉄谷町線 東梅田駅 徒歩10分 (東梅田駅の賃貸事務所) 京阪線(本線・中之島線) 大江橋駅 徒歩2分 (大江橋駅の賃貸事務所) |
||
| 設備詳細 |
|
||
| EV基数 | 3基 | 人荷EV基数 | 1基 |
| こだわり条件 |
|
||
| 備考 | |||
| アクセス | 新大阪駅まで電車15分 大阪駅梅田駅まで電車9分 関西空港まで電車55分、車45分 伊丹空港まで車20分 高速入口:環状線南森町・堂島入口 |
||
この物件の募集フロア
- この物件へのお問い合わせはこちら


〒541-0048
大阪市中央区瓦町3丁目4番3号
瓦町公洋ビル6階
TEL:06-6231-4600
FAX:06-6231-4630
- 電話で取り急ぎ物件情報を聞く

- 物件コード:C201209
- 物件コードを電話でお伝えください
類似物件のご紹介
「堂島ビルヂング」とエリア、賃料、広さが類似した物件をご紹介しております。
e-design bldg
- 大阪府大阪市北区西天満4丁目6番14号
- 35.58坪(117.62m²)
- @15,001円/坪
~@20,000円/坪 -
地下鉄谷町線 南森町駅 徒歩6分
地下鉄堺筋線 南森町駅 徒歩6分
梅田プラザビル本館
- 大阪府大阪市北区西天満4丁目3番25号
- 25.84坪(85.42m²)
- @8,001円/坪
~@12,000円/坪 -
地下鉄堺筋線 南森町駅 徒歩5分
地下鉄谷町線 南森町駅 徒歩5分
H2O TOWER(エイチ・ツー・オー・タワー)
- 大阪府大阪市北区西天満2丁目5番2号
- 25.2坪(83.31m²)
- @15,001円/坪
~@20,000円/坪 -
京阪線(本線・中之島線) 大江橋駅 徒歩2分
地下鉄御堂筋線 淀屋橋駅 徒歩4分









