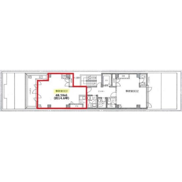
西長堀ビジネスゾーン/8階 14.6坪 物件コード:B203305
- 電話で取り急ぎ物件情報を聞く
- 0120-366-200
- 物件コードを電話でお伝えください
物件コード:B203305
ストリートビューを表示 ▼
- この物件の賃料の価格帯(共益費込)
- @8,001円/坪~@12,000円/坪
西長堀ビジネスゾーンのその他の募集階
|
|
賃料はこの物件の価格帯を表示しています。詳しい情報は電話・メールでお問い合わせください!
物件概要
| 物件名 | 西長堀ビジネスゾーン | ||
|---|---|---|---|
| 住所 | 大阪府大阪市西区新町3丁目8番18号
四ツ橋でよく検索されるその他の物件 |
||
| 構造 (規模) | 鉄骨鉄筋コンクリート造地上9階地下1階 | ||
| 坪数 | 14.6坪 | 築年月 | 1989年6月 |
| 階数 | 8階 | 空調タイプ | 個別 |
| 保証金 | - | ||
| 敷金 | - | 礼金 | 賃料の2カ月分 |
| 沿線・最寄駅 |
地下鉄千日前線 西長堀駅 徒歩3分 (西長堀駅の賃貸事務所) 地下鉄長堀鶴見緑地線 西長堀駅 徒歩3分 (西長堀駅の賃貸事務所) 地下鉄長堀鶴見緑地線 西大橋駅 徒歩5分 (西大橋駅の賃貸事務所) |
||
| 設備詳細 |
|
||
| EV基数 | 1基 | 人荷EV基数 | - |
| こだわり条件 |
|
||
| 備考 | |||
| アクセス | 新大阪駅まで電車19分 大阪駅梅田駅まで電車13分 関西空港まで電車58分、車40分 伊丹空港まで車20分 高速入口:環状線阿波座・四ツ橋・西長堀入口 |
||
この物件の募集フロア
西長堀ビジネスゾーン
- この物件へのお問い合わせはこちら


〒541-0048
大阪市中央区瓦町3丁目4番3号
瓦町公洋ビル6階
TEL:06-6231-4600
FAX:06-6231-4630
- 電話で取り急ぎ物件情報を聞く

- 物件コード:B203305
- 物件コードを電話でお伝えください
類似物件のご紹介
「西長堀ビジネスゾーン」とエリア、賃料、広さが類似した物件をご紹介しております。
DOビル新町2
- 大阪府大阪市西区新町2丁目3番17号
- 14.75坪(48.76m²)
- @8,001円/坪
~@12,000円/坪 -
地下鉄長堀鶴見緑地線 西大橋駅 徒歩4分
地下鉄四つ橋線 本町駅 徒歩9分
四ツ橋日生ビル別館
- 大阪府大阪市西区北堀江1丁目1番3号
- 16.6坪(54.88m²)
- @8,001円/坪
~@12,000円/坪 -
地下鉄四つ橋線 四ツ橋駅 徒歩1分
地下鉄長堀鶴見緑地線 心斎橋駅 徒歩2分
マインズ北堀江
- 大阪府大阪市西区北堀江1丁目22番3号
- 15.56坪(51.44m²)
- @8,001円/坪
~@12,000円/坪 -
地下鉄長堀鶴見緑地線 西大橋駅 徒歩1分
地下鉄四つ橋線 四ツ橋駅 徒歩3分








