西本町中央/8階 32.94坪 物件コード:B201129
- 電話で取り急ぎ物件情報を聞く
- 0120-366-200
- 物件コードを電話でお伝えください
物件コード:B201129


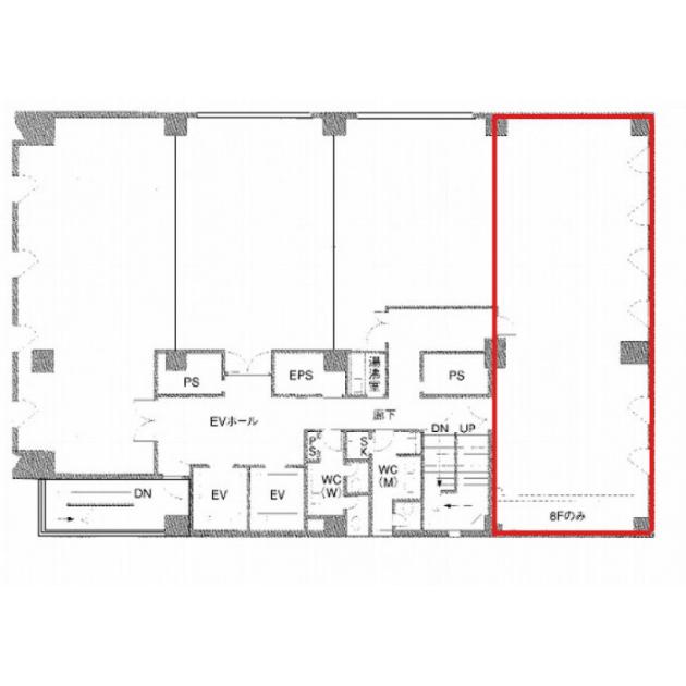
間取り図
おすすめポイント

- 大阪メトロ四つ橋「本町駅」から徒歩4分の立地に位置する、中央大通り沿いのビルです。
基準階面積約100坪の大型ビルで、駐車場が完備されています。
どの部屋も天高が2.6mあるので解放感がありますが、北と南の貸室は採光が取れる貸室でこのビルの中でも人気が高いです。
貸室は100坪~16坪ぐらいまで様々ありますので、会社の規模が大きくなった場合でもビル内でも移転がしやすいです。
ストリートビューを表示 ▼
- この物件の賃料の価格帯(共益費込)
- @8,001円/坪~@12,000円/坪
西本町中央のその他の募集階
賃料はこの物件の価格帯を表示しています。詳しい情報は電話・メールでお問い合わせください!
物件概要
| 物件名 | 西本町中央 | ||
|---|---|---|---|
| 住所 | 大阪府大阪市西区阿波座1丁目13番13号
肥後橋・本町・阿波座でよく検索されるその他の物件 |
||
| 構造 (規模) | 鉄骨鉄筋コンクリート造地上10階地下1階建 | ||
| 坪数 | 32.94坪 | 築年月 | 1989年7月1日 |
| 階数 | 8階 | 空調タイプ | 個別 |
| 保証金 | - | ||
| 敷金 | 賃料の12カ月分 | 礼金 | - |
| 沿線・最寄駅 |
地下鉄四つ橋線 本町駅 徒歩3分 (本町駅の賃貸事務所) 地下鉄中央線 本町駅 徒歩4分 (本町駅の賃貸事務所) 地下鉄御堂筋線 本町駅 徒歩6分 (本町駅の賃貸事務所) |
||
| 設備詳細 |
|
||
| EV基数 | 2基 | 人荷EV基数 | - |
| こだわり条件 |
|
||
| 備考 | ・大通り沿い・新耐震基準適合 ・1フロア1テナント・天井高2600mm ・駐輪場有り |
||
| アクセス | 新大阪駅まで電車17分 大阪駅梅田駅まで電車11分 関西空港まで電車57分、車45分 伊丹空港まで車20分 高速入口:阪神高速環状線信濃橋・阿波座入口 |
||
この物件の募集フロア
西本町中央
- この物件へのお問い合わせはこちら


〒541-0048
大阪市中央区瓦町3丁目4番3号
瓦町公洋ビル6階
TEL:06-6231-4600
FAX:06-6231-4630
- 電話で取り急ぎ物件情報を聞く

- 物件コード:B201129
- 物件コードを電話でお伝えください
類似物件のご紹介
「西本町中央」とエリア、賃料、広さが類似した物件をご紹介しております。
藤原(FUJIHARA)
- 大阪府大阪市西区京町堀1丁目18番15号
- 26.56坪(87.80m²)
- @8,001円/坪
~@12,000円/坪 -
地下鉄四つ橋線 肥後橋駅 徒歩7分
地下鉄四つ橋線 本町駅 徒歩9分
アドーラブル南堀江
- 大阪府大阪市西区南堀江3丁目12番17号
- 31.99坪(105.75m²)
- @8,001円/坪
~@12,000円/坪 -
地下鉄千日前線 西長堀駅 徒歩1分
地下鉄長堀鶴見緑地線 西長堀駅 徒歩1分
本町アートスクエア
- 大阪府大阪市西区靭本町1丁目16番20号
- 31.27坪(103.37m²)
- @8,001円/坪
~@12,000円/坪 -
地下鉄四つ橋線 本町駅 徒歩4分
地下鉄御堂筋線 本町駅 徒歩6分






