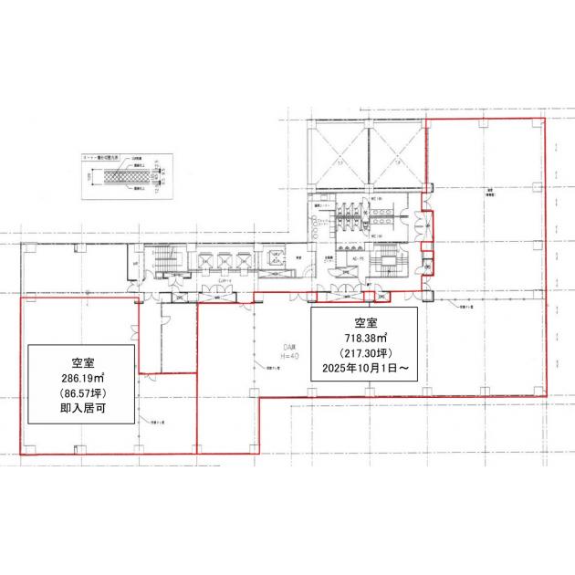
江戸堀フコク生命/7階 217.3坪 物件コード:B102211
- 電話で取り急ぎ物件情報を聞く
- 0120-366-200
- 物件コードを電話でお伝えください
物件コード:B102211
ストリートビューを表示 ▼
- この物件の賃料の価格帯(共益費込)
- @8,001円/坪~@12,000円/坪
江戸堀フコク生命のその他の募集階
賃料はこの物件の価格帯を表示しています。詳しい情報は電話・メールでお問い合わせください!
物件概要
| 物件名 | 江戸堀フコク生命 | ||
|---|---|---|---|
| 住所 | 大阪府大阪市西区江戸堀2丁目6番33号
肥後橋・本町でよく検索されるその他の物件 |
||
| 構造 (規模) | 鉄骨鉄筋コンクリート造地下1階地上10階建 | ||
| 坪数 | 217.3坪 | 築年月 | 1994年2月1日 |
| 階数 | 7階 | 空調タイプ | 集中 |
| 保証金 | - | ||
| 敷金 | 賃料の12カ月分 | 礼金 | - |
| 沿線・最寄駅 |
地下鉄四つ橋線 肥後橋駅 徒歩8分 (肥後橋駅の賃貸事務所) 地下鉄四つ橋線 本町駅 徒歩8分 (本町駅の賃貸事務所) 地下鉄中央線 阿波座駅 徒歩10分 (阿波座駅の賃貸事務所) |
||
| 設備詳細 |
|
||
| EV基数 | 3基 | 人荷EV基数 | 1基 |
| こだわり条件 |
|
||
| 備考 | |||
| アクセス | 新大阪駅まで電車23分 大阪駅梅田駅まで電車17分 関西空港まで電車62分、車40分 伊丹空港まで車20分 高速入口:環状線堂島・中之島・中之島西入口 |
||
この物件の募集フロア
江戸堀フコク生命
- この物件へのお問い合わせはこちら


〒541-0048
大阪市中央区瓦町3丁目4番3号
瓦町公洋ビル6階
TEL:06-6231-4600
FAX:06-6231-4630
- 電話で取り急ぎ物件情報を聞く

- 物件コード:B102211
- 物件コードを電話でお伝えください
類似物件のご紹介
「江戸堀フコク生命」とエリア、賃料、広さが類似した物件をご紹介しております。









