中博(ナカヒロ)/3階 22.5坪 物件コード:A204205
- 電話で取り急ぎ物件情報を聞く
- 0120-366-200
- 物件コードを電話でお伝えください
物件コード:A204205


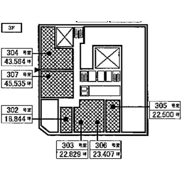
間取り図
おすすめポイント

- 大阪メトロ長堀鶴見緑地線「長堀橋」駅、堺筋線「長堀橋」駅から徒歩5分圏内でアクセス良好なオフィスビルです。基準階面積が300坪を超える大型ビルで、エントランスもゆったりとした空間になっています。築年数は経過しておりますが、管理がしっかりとされ、清潔感が感じられます。
ストリートビューを表示 ▼
- この物件の賃料の価格帯(共益費込)
- @12,001円/坪~@15,000円/坪
中博(ナカヒロ)のその他の募集階
|
続きを表示 ▼ |
賃料はこの物件の価格帯を表示しています。詳しい情報は電話・メールでお問い合わせください!
物件概要
| 物件名 | 中博(ナカヒロ) | ||
|---|---|---|---|
| 住所 | 大阪府大阪市中央区博労町2丁目4番11号
本町・堺筋本町・心斎橋・長堀橋でよく検索されるその他の物件 |
||
| 構造 (規模) | 鉄骨鉄筋コンクリート地下1階・地上7階 | ||
| 坪数 | 22.5坪 | 築年月 | 1969年4月 |
| 階数 | 3階 | 空調タイプ | 個別 |
| 保証金 | - | ||
| 敷金 | 相談 | 礼金 | - |
| 沿線・最寄駅 |
地下鉄堺筋線 堺筋本町駅 徒歩4分 (堺筋本町駅の賃貸事務所) 地下鉄堺筋線 堺筋本町駅 徒歩4分 (堺筋本町駅の賃貸事務所) 地下鉄中央線 堺筋本町駅 徒歩5分 (堺筋本町駅の賃貸事務所) |
||
| 設備詳細 |
|
||
| EV基数 | 2基 | 人荷EV基数 | - |
| こだわり条件 |
|
||
| 備考 | |||
| アクセス | 新大阪駅まで電車15分 大阪駅梅田駅まで電車9分 関西空港まで電車51分、車46分 伊丹空港まで車22分 高速入口:環状線長堀入口 |
||
- この物件へのお問い合わせはこちら


〒541-0048
大阪市中央区瓦町3丁目4番3号
瓦町公洋ビル6階
TEL:06-6231-4600
FAX:06-6231-4630
- 電話で取り急ぎ物件情報を聞く

- 物件コード:A204205
- 物件コードを電話でお伝えください
類似物件のご紹介
「中博(ナカヒロ)」とエリア、賃料、広さが類似した物件をご紹介しております。
東邦第2ビル(旧第2BS)
- 大阪府大阪市中央区南船場2丁目6番3号
- 21.6坪(71.40m²)
- @12,001円/坪
~@15,000円/坪 -
地下鉄堺筋線 長堀橋駅 徒歩2分
地下鉄長堀鶴見緑地線 長堀橋駅 徒歩2分
いろは(旧:ウェルコ)
- 大阪府大阪市中央区博労町1丁目6番13号
- 18.15坪(60.00m²)
- @12,001円/坪
~@15,000円/坪 -
地下鉄堺筋線 長堀橋駅 徒歩4分
地下鉄長堀鶴見緑地線 長堀橋駅 徒歩4分
瓦町ダイワ(旧:丸水)
- 大阪府大阪市中央区瓦町2丁目1番14号
- 19.05坪(62.98m²)
- @12,001円/坪
~@15,000円/坪 -
地下鉄堺筋線 堺筋本町駅 徒歩3分
地下鉄中央線 堺筋本町駅 徒歩5分






