大東/1階 43.16坪 物件コード:A203410
- 電話で取り急ぎ物件情報を聞く
- 0120-366-200
- 物件コードを電話でお伝えください
物件コード:A203410


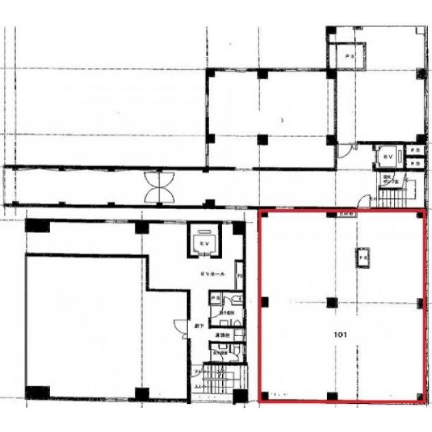
間取り図
おすすめポイント

- 大阪メトロ御堂筋線「本町駅」徒歩4分の立地に位置するビル。築年数を感じないデザイン性が高いビルで、落ち着いた北欧調の青色が無機質な雰囲気を漂わせる近代的な外観のビルです。おしゃれ感を求めるクリエイティブな企業の方のご要望にも十分にお答えできます。
ストリートビューを表示 ▼
- この物件の賃料の価格帯(共益費込)
- この部屋は成約済みです
大東のその他の募集階
賃料はこの物件の価格帯を表示しています。詳しい情報は電話・メールでお問い合わせください!
物件概要
| 物件名 | 大東 | ||
|---|---|---|---|
| 住所 | 大阪府大阪市中央区南久宝寺町4丁目4番13号 | ||
| 構造 (規模) | 鉄筋コンクリート造地上8階建 | ||
| 坪数 | 43.16坪 | 築年月 | 1966年11月1日 |
| 階数 | 1階 | 空調タイプ | 個別 |
| 保証金 | - | ||
| 敷金 | - | 礼金 | - |
| 沿線・最寄駅 |
地下鉄御堂筋線 本町駅 徒歩4分 (本町駅の賃貸事務所) 地下鉄中央線 本町駅 徒歩4分 (本町駅の賃貸事務所) 地下鉄四つ橋線 本町駅 徒歩6分 (本町駅の賃貸事務所) |
||
| 設備詳細 |
|
||
| EV基数 | 1基 | 人荷EV基数 | - |
| こだわり条件 |
|
||
| 備考 | 込5ヵ月 | ||
| アクセス | 新大阪駅まで電車16分 大阪駅梅田駅まで電車10分 関西空港まで電車51分、車46分 伊丹空港まで車22分 高速入口:環状線信濃橋・阿波座・長堀 入口 |
||
- この物件へのお問い合わせはこちら


〒541-0048
大阪市中央区瓦町3丁目4番3号
瓦町公洋ビル6階
TEL:06-6231-4600
FAX:06-6231-4630
- 電話で取り急ぎ物件情報を聞く

- 物件コード:A203410
- 物件コードを電話でお伝えください
類似物件のご紹介
「大東」とエリア、賃料、広さが類似した物件をご紹介しております。
東邦
- 大阪府大阪市中央区西心斎橋1丁目1番13号
- 47.22坪(156.10m²)
- @12,001円/坪
~@15,000円/坪 -
地下鉄御堂筋線 心斎橋駅 徒歩1分
地下鉄長堀鶴見緑地線 心斎橋駅 徒歩1分
HSK南船場
- 大阪府大阪市中央区南船場2丁目3番23号
- 34.87坪(115.27m²)
- @12,001円/坪
~@15,000円/坪 -
地下鉄堺筋線 長堀橋駅 徒歩3分
地下鉄長堀鶴見緑地線 長堀橋駅 徒歩3分
仮)阿波座一丁目貸店舗
- 大阪府大阪市西区阿波座1丁目3番19号
- 44.17坪(146.02m²)
- @12,001円/坪
~@15,000円/坪 -
地下鉄四つ橋線 本町駅 徒歩1分
地下鉄中央線 本町駅 徒歩2分
中博(ナカヒロ)
- 大阪府大阪市中央区博労町2丁目4番11号
- 46.887坪(155.00m²)
- @12,001円/坪
~@15,000円/坪 -
地下鉄堺筋線 堺筋本町駅 徒歩4分
地下鉄堺筋線 堺筋本町駅 徒歩4分
肥後橋ユニオン
- 大阪府大阪市西区江戸堀1丁目9番6号
- 43.27坪(143.04m²)
- @12,001円/坪
~@15,000円/坪 -
地下鉄四つ橋線 肥後橋駅 徒歩1分
地下鉄御堂筋線 淀屋橋駅 徒歩6分
本町・堺筋本町エリアの貸し事務所、賃貸オフィス一覧を見る>>






