創建本町/5階 36.43坪 物件コード:A112203
- 電話で取り急ぎ物件情報を聞く
- 0120-366-200
- 物件コードを電話でお伝えください
物件コード:A112203


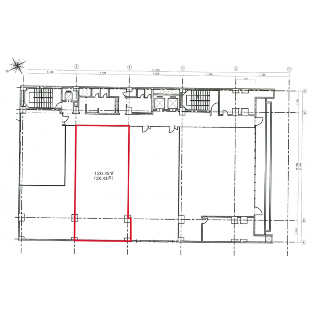
間取り図
おすすめポイント

- 大阪メトロ堺筋線・中央線「堺筋本町」駅徒歩1分の好立地。1階エントランスを広く設けており、共用部はリニューアルされて木目調のおしゃれな雰囲気に仕上がっています。1階駐車場は平面駐車場なので、大型車両も駐車可能。駐輪場も完備。築は古いのですが、元々銀行が入っていたビルなので、非常にがっちりとした建物です。
ストリートビューを表示 ▼
- この物件の賃料の価格帯(共益費込)
- この部屋は成約済みです
創建本町のその他の募集階
|
|
賃料はこの物件の価格帯を表示しています。詳しい情報は電話・メールでお問い合わせください!
物件概要
| 物件名 | 創建本町 | ||
|---|---|---|---|
| 住所 | 大阪府大阪市中央区南本町2丁目1番8号 | ||
| 構造 (規模) | 鉄骨鉄筋コンクリート造地上8階地下1階建 | ||
| 坪数 | 36.43坪 | 築年月 | 1974年10月1日 |
| 階数 | 5階 | 空調タイプ | 個別 |
| 保証金 | - | ||
| 敷金 | - | 礼金 | - |
| 沿線・最寄駅 |
地下鉄堺筋線 堺筋本町駅 徒歩1分 (堺筋本町駅の賃貸事務所) 地下鉄中央線 堺筋本町駅 徒歩1分 (堺筋本町駅の賃貸事務所) 地下鉄御堂筋線 本町駅 徒歩6分 (本町駅の賃貸事務所) |
||
| 設備詳細 |
|
||
| EV基数 | 2基 | 人荷EV基数 | 1基 |
| こだわり条件 |
|
||
| 備考 | ・駅近 ・駐輪場有り |
||
| アクセス | 新大阪駅まで電車18分 大阪駅梅田駅まで電車12分 関西空港まで電車50分、車47分 伊丹空港まで車20分 高速入口:環状線信濃橋・阿波座 |
||
この物件の募集フロア
創建本町
- この物件へのお問い合わせはこちら


〒541-0048
大阪市中央区瓦町3丁目4番3号
瓦町公洋ビル6階
TEL:06-6231-4600
FAX:06-6231-4630
- 電話で取り急ぎ物件情報を聞く

- 物件コード:A112203
- 物件コードを電話でお伝えください
類似物件のご紹介
「創建本町」とエリア、賃料、広さが類似した物件をご紹介しております。
トヤマ中央館(新トヤマ)
- 大阪府大阪市中央区安土町1丁目7番20号
- 41.34坪(136.66m²)
- @8,001円/坪
~@12,000円/坪 -
地下鉄堺筋線 堺筋本町駅 徒歩1分
地下鉄中央線 堺筋本町駅 徒歩3分
南本町エクセル
- 大阪府大阪市中央区久太郎町3丁目2番10号
- 35.95坪(118.84m²)
- @8,001円/坪
~@12,000円/坪 -
地下鉄御堂筋線 本町駅 徒歩3分
地下鉄中央線 本町駅 徒歩3分
トヤマ中央館(新トヤマ)
- 大阪府大阪市中央区安土町1丁目7番20号
- 41.34坪(136.66m²)
- @8,001円/坪
~@12,000円/坪 -
地下鉄堺筋線 堺筋本町駅 徒歩1分
地下鉄中央線 堺筋本町駅 徒歩3分






