住友生命本町第2/9階 10.44坪 物件コード:A111412
- 電話で取り急ぎ物件情報を聞く
- 0120-366-200
- 物件コードを電話でお伝えください
物件コード:A111412


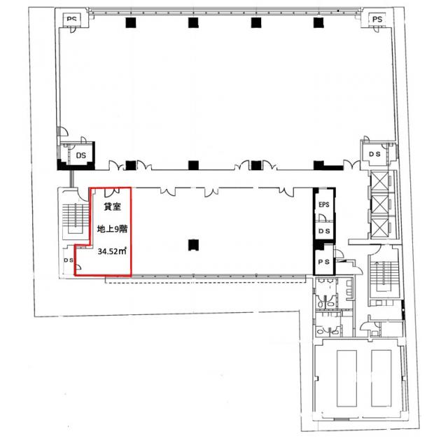
間取り図
おすすめポイント

- 大阪メトロ御堂筋線「本町駅」徒歩2分、本町通りに面する大型ビル。基準階面積約193坪の規模感、ネームバリュー、グレード共に申し分がないビルですので、長く入居して頂けます。また、ビルの向かいにアパホテル御堂筋本町駅前が営業しておりますので、出張が多い企業様にもおすすめです。
ストリートビューを表示 ▼
- この物件の賃料の価格帯(共益費込)
- @12,001円/坪~@15,000円/坪
住友生命本町第2のその他の募集階
|
|
賃料はこの物件の価格帯を表示しています。詳しい情報は電話・メールでお問い合わせください!
物件概要
| 物件名 | 住友生命本町第2 | ||
|---|---|---|---|
| 住所 | 大阪府大阪市中央区本町4丁目4番24号
本町・堺筋本町でよく検索されるその他の物件 |
||
| 構造 (規模) | 鉄骨鉄筋コンクリート造地上11階地下1階建 | ||
| 坪数 | 10.44坪 | 築年月 | 1979年8月1日 |
| 階数 | 9階 | 空調タイプ | 個別 |
| 保証金 | - | ||
| 敷金 | 賃料の12カ月分 | 礼金 | - |
| 沿線・最寄駅 |
地下鉄御堂筋線 本町駅 徒歩2分 (本町駅の賃貸事務所) 地下鉄中央線 本町駅 徒歩2分 (本町駅の賃貸事務所) 地下鉄四つ橋線 本町駅 徒歩2分 (本町駅の賃貸事務所) |
||
| 設備詳細 |
|
||
| EV基数 | 2基 | 人荷EV基数 | 1基 |
| こだわり条件 |
|
||
| 備考 | |||
| アクセス | 新大阪駅まで電車18分 大阪駅梅田駅まで電車12分 関西空港まで電車49分、車53分 伊丹空港まで車25分 高速入口:環状線信濃橋・阿波座 |
||
この物件の募集フロア
住友生命本町第2
- この物件へのお問い合わせはこちら


〒541-0048
大阪市中央区瓦町3丁目4番3号
瓦町公洋ビル6階
TEL:06-6231-4600
FAX:06-6231-4630
- 電話で取り急ぎ物件情報を聞く

- 物件コード:A111412
- 物件コードを電話でお伝えください
類似物件のご紹介
「住友生命本町第2」とエリア、賃料、広さが類似した物件をご紹介しております。
インターワンプレイス本町(旧:日宝本町)
- 大阪府大阪市中央区南本町2丁目4番6号
- 10.52坪(34.78m²)
- @12,001円/坪
~@15,000円/坪 -
地下鉄堺筋線 堺筋本町駅 徒歩2分
地下鉄中央線 堺筋本町駅 徒歩2分
RE-017
- 大阪府大阪市中央区北久宝寺町2丁目6番1号
- 9.33坪(30.84m²)
- @12,001円/坪
~@15,000円/坪 -
地下鉄堺筋線 堺筋本町駅 徒歩3分
地下鉄中央線 堺筋本町駅 徒歩3分
中博(ナカヒロ)
- 大阪府大阪市中央区博労町2丁目4番11号
- 11.952坪(39.51m²)
- @12,001円/坪
~@15,000円/坪 -
地下鉄堺筋線 堺筋本町駅 徒歩4分
地下鉄堺筋線 堺筋本町駅 徒歩4分






