野村不動産御堂筋本町(旧東芝大阪)/4階 86.32坪 物件コード:A111403
- 電話で取り急ぎ物件情報を聞く
- 0120-366-200
- 物件コードを電話でお伝えください
物件コード:A111403


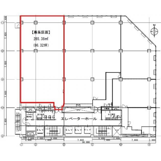
間取り図
おすすめポイント

- 御堂筋本町駅交差点の南西角に位置するロケーションの良いビルです。大阪ビジネス街のど真ん中ストライクにあるオフィスビルです。また、免震対策物件ですので、地震にも強く安心して頂けます。
ストリートビューを表示 ▼
- この物件の賃料の価格帯(共益費込)
- 相談
野村不動産御堂筋本町(旧東芝大阪)のその他の募集階
賃料はこの物件の価格帯を表示しています。詳しい情報は電話・メールでお問い合わせください!
物件概要
| 物件名 | 野村不動産御堂筋本町(旧東芝大阪) | ||
|---|---|---|---|
| 住所 | 大阪府大阪市中央区本町4丁目2番12号
本町・堺筋本町でよく検索されるその他の物件 |
||
| 構造 (規模) | 鉄骨鉄筋コンクリート造地上9階地下4階建 | ||
| 坪数 | 86.32坪 | 築年月 | 1965年10月1日 |
| 階数 | 4階 | 空調タイプ | 個別 |
| 保証金 | - | ||
| 敷金 | 相談 | 礼金 | - |
| 沿線・最寄駅 |
地下鉄御堂筋線 本町駅 徒歩1分 (本町駅の賃貸事務所) 地下鉄中央線 本町駅 徒歩2分 (本町駅の賃貸事務所) 地下鉄四つ橋線 本町駅 徒歩4分 (本町駅の賃貸事務所) |
||
| 設備詳細 |
|
||
| EV基数 | 4基 | 人荷EV基数 | - |
| こだわり条件 |
|
||
| 備考 | |||
| アクセス | 新大阪駅まで電車19分 大阪駅梅田駅まで電車13分 関西空港まで電車48分、車53分 伊丹空港まで車23分 高速入口:環状線信濃橋・阿波座 |
||
この物件の募集フロア
野村不動産御堂筋本町(旧東芝大阪)
- この物件へのお問い合わせはこちら


〒541-0048
大阪市中央区瓦町3丁目4番3号
瓦町公洋ビル6階
TEL:06-6231-4600
FAX:06-6231-4630
- 電話で取り急ぎ物件情報を聞く

- 物件コード:A111403
- 物件コードを電話でお伝えください
類似物件のご紹介
「野村不動産御堂筋本町(旧東芝大阪)」とエリア、賃料、広さが類似した物件をご紹介しております。
積水ハウス不動産南御堂(旧積和不動産関西南御堂ビルディング)
- 大阪府大阪市中央区久太郎町4丁目1番15号
- 81.21坪(268.46m²)
- 相談
-
地下鉄御堂筋線 本町駅 徒歩3分
地下鉄中央線 本町駅 徒歩3分
大阪国際
- 大阪府大阪市中央区安土町2丁目3番13号
- 93.12坪(307.83m²)
- @15,001円/坪
~@20,000円/坪 -
地下鉄堺筋線 堺筋本町駅 徒歩1分
地下鉄中央線 堺筋本町駅 徒歩3分
トヤマ本館
- 大阪府大阪市中央区安土町1丁目7番13号
- 92.65坪(306.28m²)
- @8,001円/坪
~@12,000円/坪 -
地下鉄堺筋線 堺筋本町駅 徒歩1分
地下鉄中央線 堺筋本町駅 徒歩3分






