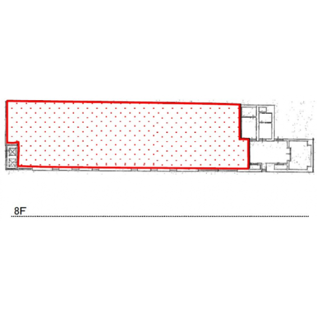
瓦路/8階 42坪 物件コード:A108205
- 電話で取り急ぎ物件情報を聞く
- 0120-366-200
- 物件コードを電話でお伝えください
物件コード:A108205


おすすめポイント

- 堺筋から少し入った立地にあるコンパクトビル。1階ははんこ屋さん、エントランス部分には四季折々の絵画が飾られており、来客の方にも好印象をを与えます。貸室はワンフロアワンテナントで隣室に気を遣わずにご入居頂けます。
ストリートビューを表示 ▼
- この物件の賃料の価格帯(共益費込)
- @8,001円/坪~@12,000円/坪
瓦路のその他の募集階
|
|
賃料はこの物件の価格帯を表示しています。詳しい情報は電話・メールでお問い合わせください!
物件概要
| 物件名 | 瓦路 | ||
|---|---|---|---|
| 住所 | 大阪府大阪市中央区瓦町2丁目2番7号
淀屋橋・北浜・本町・堺筋本町でよく検索されるその他の物件 |
||
| 構造 (規模) | 鉄骨造地上10階地下1階建 | ||
| 坪数 | 42坪 | 築年月 | 1992年5月1日 |
| 階数 | 8階 | 空調タイプ | 個別 |
| 保証金 | - | ||
| 敷金 | 賃料の10カ月分 | 礼金 | - |
| 沿線・最寄駅 |
地下鉄堺筋線 堺筋本町駅 徒歩3分 (堺筋本町駅の賃貸事務所) 地下鉄中央線 堺筋本町駅 徒歩4分 (堺筋本町駅の賃貸事務所) 地下鉄堺筋線 北浜駅 徒歩6分 (北浜駅の賃貸事務所) |
||
| 設備詳細 |
|
||
| EV基数 | 1基 | 人荷EV基数 | - |
| こだわり条件 |
|
||
| 備考 | ・新耐震基準適合 ・ワンフロアワンテナント ・駐輪場 |
||
| アクセス | 新大阪駅まで電車18分 大阪駅梅田駅まで電車13分 関西空港まで電車52分、車45分 伊丹空港まで車19分 高速入口:環状線高麗橋入口 |
||
この物件の募集フロア
瓦路
- この物件へのお問い合わせはこちら


〒541-0048
大阪市中央区瓦町3丁目4番3号
瓦町公洋ビル6階
TEL:06-6231-4600
FAX:06-6231-4630
- 電話で取り急ぎ物件情報を聞く

- 物件コード:A108205
- 物件コードを電話でお伝えください
類似物件のご紹介
「瓦路」とエリア、賃料、広さが類似した物件をご紹介しております。
ZELKOVA QUATTRO
- 大阪府大阪市中央区淡路町3丁目2番13号
- 40坪(132.23m²)
- @8,001円/坪
~@12,000円/坪 -
地下鉄御堂筋線 本町駅 徒歩5分
地下鉄御堂筋線 淀屋橋駅 徒歩6分
南本町エクセル
- 大阪府大阪市中央区久太郎町3丁目2番10号
- 35.95坪(118.84m²)
- @8,001円/坪
~@12,000円/坪 -
地下鉄御堂筋線 本町駅 徒歩3分
地下鉄中央線 本町駅 徒歩3分
堺筋トラスト
- 大阪府大阪市中央区博労町1丁目7番2号
- 44.72坪(147.83m²)
- @8,001円/坪
~@12,000円/坪 -
地下鉄堺筋線 長堀橋駅 徒歩3分
地下鉄長堀鶴見緑地線 長堀橋駅 徒歩3分
IS本町(旧本町KG)
- 大阪府大阪市中央区本町4丁目6番17号
- 48.28坪(159.60m²)
- @8,001円/坪
~@12,000円/坪 -
地下鉄御堂筋線 本町駅 徒歩3分
地下鉄中央線 本町駅 徒歩3分
リアライズ堺筋本町(旧:三星中央)
- 大阪府大阪市中央区久太郎町1丁目5番31号
- 42.47坪(140.40m²)
- @8,001円/坪
~@12,000円/坪 -
地下鉄堺筋線 堺筋本町駅 徒歩3分
地下鉄中央線 堺筋本町駅 徒歩3分






