CBM/6階 35.94坪 物件コード:A107210
- 電話で取り急ぎ物件情報を聞く
- 0120-366-200
- 物件コードを電話でお伝えください
物件コード:A107210


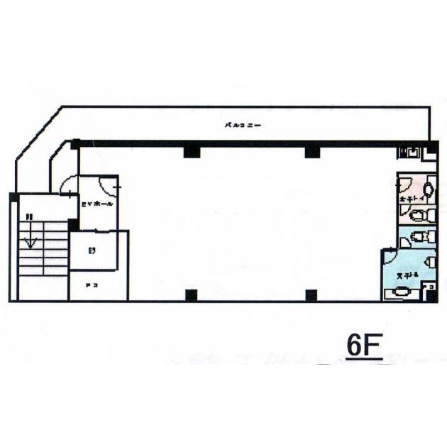
間取り図
おすすめポイント

- 大阪メトロ堺筋線「堺筋本町駅」徒歩5分の立地に位置するワンフロアーワンテナントの角ビル。角地に建つビルなので、採光がとれ解放感がある貸室です。また貸室内にトイレ、水回りがありますので空中店舗としての使用も相談できます。
ストリートビューを表示 ▼
- この物件の賃料の価格帯(共益費込)
- 相談
CBMのその他の募集階
|
|
賃料はこの物件の価格帯を表示しています。詳しい情報は電話・メールでお問い合わせください!
物件概要
| 物件名 | CBM | ||
|---|---|---|---|
| 住所 | 大阪府大阪市中央区淡路町2丁目3番12号
淀屋橋・北浜・本町・堺筋本町でよく検索されるその他の物件 |
||
| 構造 (規模) | 鉄筋コンクリート造地上6階地下1階建 | ||
| 坪数 | 35.94坪 | 築年月 | 1988年6月1日 |
| 階数 | 6階 | 空調タイプ | 個別 |
| 保証金 | - | ||
| 敷金 | 相談 | 礼金 | - |
| 沿線・最寄駅 |
地下鉄堺筋線 堺筋本町駅 徒歩5分 (堺筋本町駅の賃貸事務所) 地下鉄中央線 堺筋本町駅 徒歩7分 (堺筋本町駅の賃貸事務所) 地下鉄御堂筋線 本町駅 徒歩8分 (本町駅の賃貸事務所) |
||
| 設備詳細 |
|
||
| EV基数 | 1基 | 人荷EV基数 | - |
| こだわり条件 |
|
||
| 備考 | ・角ビル ・新耐震基準適合 ・ワンフロアワンテナント ・リノベーション済み |
||
| アクセス | 新大阪駅まで電車17分 大阪駅梅田駅まで電車11分 関西空港まで電車54分、車49分 伊丹空港まで車21分 高速入口:環状線高麗橋入口 |
||
この物件の募集フロア
CBM
- この物件へのお問い合わせはこちら


〒541-0048
大阪市中央区瓦町3丁目4番3号
瓦町公洋ビル6階
TEL:06-6231-4600
FAX:06-6231-4630
- 電話で取り急ぎ物件情報を聞く

- 物件コード:A107210
- 物件コードを電話でお伝えください
類似物件のご紹介
「CBM」とエリア、賃料、広さが類似した物件をご紹介しております。
南本町エクセル
- 大阪府大阪市中央区久太郎町3丁目2番10号
- 35.95坪(118.84m²)
- @8,001円/坪
~@12,000円/坪 -
地下鉄御堂筋線 本町駅 徒歩3分
地下鉄中央線 本町駅 徒歩3分
JAY‘Sオフィスタワー南本町
- 大阪府大阪市中央区南本町3丁目2番21号
- 29.6坪(97.85m²)
- @15,001円/坪
~@20,000円/坪 -
地下鉄御堂筋線 本町駅 徒歩3分
地下鉄堺筋線 堺筋本町駅 徒歩3分






