プロスパー平野町/5階 6.8坪 物件コード:A106303
- 電話で取り急ぎ物件情報を聞く
- 0120-366-200
- 物件コードを電話でお伝えください
物件コード:A106303


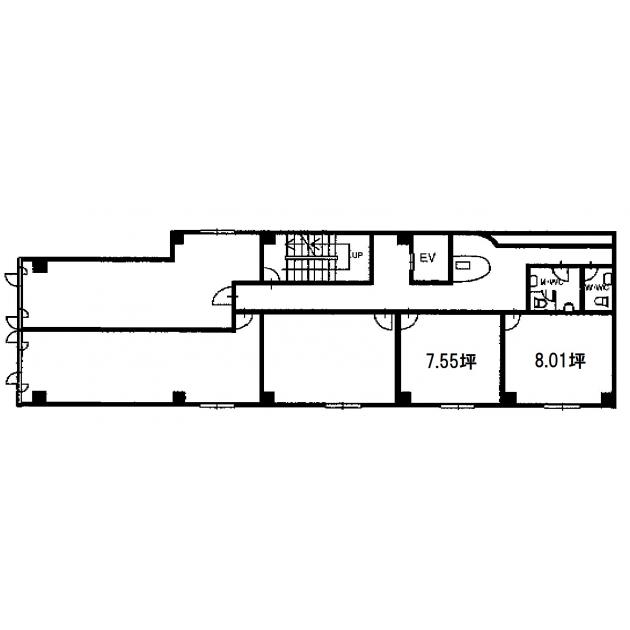
間取り図
おすすめポイント

- コンパクトながら石張りの外観で正面玄関までは階段があるなど、非常に重厚感漂う雰囲気のビル。エントランスに無料で使えるミーティングスペースや、完全個室の有料会議室が大小一つづつ有り、貸室のレイアウトを十分有効活用ができます。
ストリートビューを表示 ▼
- この物件の賃料の価格帯(共益費込)
- @15,001円/坪~@20,000円/坪
プロスパー平野町のその他の募集階
賃料はこの物件の価格帯を表示しています。詳しい情報は電話・メールでお問い合わせください!
物件概要
| 物件名 | プロスパー平野町 | ||
|---|---|---|---|
| 住所 | 大阪府大阪市中央区平野町3丁目1番8号
淀屋橋・北浜・本町・堺筋本町でよく検索されるその他の物件 |
||
| 構造 (規模) | 鉄骨造地上9階地下1階建 | ||
| 坪数 | 6.8坪 | 築年月 | 1989年10月1日 |
| 階数 | 5階 | 空調タイプ | 個別 |
| 保証金 | 総額238,000円(@35,000円/坪) | ||
| 敷金 | - | 礼金 | - |
| 沿線・最寄駅 |
地下鉄御堂筋線 淀屋橋駅 徒歩4分 (淀屋橋駅の賃貸事務所) 地下鉄堺筋線 北浜駅 徒歩6分 (北浜駅の賃貸事務所) 京阪線(本線・中之島線) 北浜駅 徒歩7分 (北浜駅の賃貸事務所) |
||
| 設備詳細 |
|
||
| EV基数 | 1基 | 人荷EV基数 | - |
| こだわり条件 |
|
||
| 備考 | ・新耐震基準適合・天井高2.5m ・2013年共用部リニューアル済み ・貸会議室有り・駐輪場有り |
||
| アクセス | 新大阪駅まで電車13分 大阪駅梅田駅まで電車7分 関西空港まで電車55分、車49分 伊丹空港まで車25分 高速入口:環状線高麗橋・信濃橋入口 |
||
この物件の募集フロア
プロスパー平野町
- この物件へのお問い合わせはこちら


〒541-0048
大阪市中央区瓦町3丁目4番3号
瓦町公洋ビル6階
TEL:06-6231-4600
FAX:06-6231-4630
- 電話で取り急ぎ物件情報を聞く

- 物件コード:A106303
- 物件コードを電話でお伝えください
類似物件のご紹介
「プロスパー平野町」とエリア、賃料、広さが類似した物件をご紹介しております。






