平野町高橋/2階 23.46坪 物件コード:A106126
- 電話で取り急ぎ物件情報を聞く
- 0120-366-200
- 物件コードを電話でお伝えください
物件コード:A106126


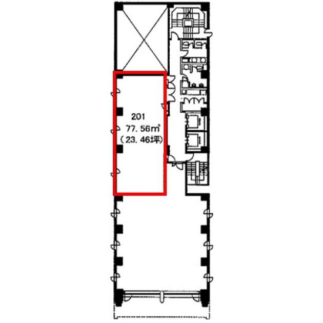
間取り図
おすすめポイント

- 平野町高橋ビルは、石張りの外壁とエントランスは重厚感を与え、管理も行き届いており清潔感が溢れるオフィスビル。駅も近く、駐車場も完備しているので外回りが多い企業にオススメです。オフィス街では珍しい、駐輪場も完備しており重宝されます。また設備面も細かに手が加えられており省エネ型空調機に入れ替え済み。
ストリートビューを表示 ▼
- この物件の賃料の価格帯(共益費込)
- @8,001円/坪~@12,000円/坪
平野町高橋のその他の募集階
|
|
賃料はこの物件の価格帯を表示しています。詳しい情報は電話・メールでお問い合わせください!
物件概要
| 物件名 | 平野町高橋 | ||
|---|---|---|---|
| 住所 | 大阪府大阪市中央区平野町1丁目8番8号
淀屋橋・北浜でよく検索されるその他の物件 |
||
| 構造 (規模) | 鉄骨鉄筋コンクリート造地上10階地下1階建 | ||
| 坪数 | 23.46坪 | 築年月 | 1994年3月1日 |
| 階数 | 2階 | 空調タイプ | 個別 |
| 保証金 | - | ||
| 敷金 | 賃料の6カ月分 | 礼金 | - |
| 沿線・最寄駅 |
地下鉄堺筋線 北浜駅 徒歩3分 (北浜駅の賃貸事務所) 京阪線(本線・中之島線) 北浜駅 徒歩5分 (北浜駅の賃貸事務所) 地下鉄堺筋線 堺筋本町駅 徒歩5分 (堺筋本町駅の賃貸事務所) |
||
| 設備詳細 |
|
||
| EV基数 | 2基 | 人荷EV基数 | - |
| こだわり条件 |
|
||
| 備考 | ・新耐震基準適合・OAフロア60mm ・天井高2.5m・省エネ型空調に入れ替え済み ・機械式駐車場35000円/月・駐輪場有り |
||
| アクセス | 新大阪駅まで電車17分 大阪駅梅田駅まで電車12分 関西空港まで電車53分、車52分 伊丹空港まで車25分 高速入口:環状線高麗橋入口 |
||
この物件の募集フロア
平野町高橋
- この物件へのお問い合わせはこちら


〒541-0048
大阪市中央区瓦町3丁目4番3号
瓦町公洋ビル6階
TEL:06-6231-4600
FAX:06-6231-4630
- 電話で取り急ぎ物件情報を聞く

- 物件コード:A106126
- 物件コードを電話でお伝えください
類似物件のご紹介
「平野町高橋」とエリア、賃料、広さが類似した物件をご紹介しております。
VIP関西センター
- 大阪府大阪市中央区北浜2丁目3番10号
- 23.42坪(77.42m²)
- @8,001円/坪
~@12,000円/坪 -
地下鉄堺筋線 北浜駅 徒歩1分
京阪線(本線・中之島線) 北浜駅 徒歩1分
おおきにkokodesu瓦町4丁目
- 大阪府大阪市中央区瓦町4丁目4番8号
- 24.8坪(81.98m²)
- @8,001円/坪
~@12,000円/坪 -
地下鉄御堂筋線 本町駅 徒歩3分
地下鉄中央線 本町駅 徒歩5分
TERASOMA
- 大阪府大阪市中央区高麗橋4丁目5番12号
- 27.32坪(90.31m²)
- @8,001円/坪
~@12,000円/坪 -
地下鉄御堂筋線 淀屋橋駅 徒歩3分
地下鉄四つ橋線 肥後橋駅 徒歩3分






