K.シオノ※この物件は現在、非掲載とさせていただいております。詳細はお問合せください 物件コード:A105308
- 電話で取り急ぎ物件情報を聞く
- 0120-366-200
- 物件コードを電話でお伝えください
物件コード:A105308


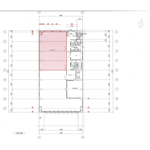
間取り図
おすすめポイント
- K.シオノビルは御堂筋線淀屋橋駅から徒歩3分と大変便利な場所に位置するビルです。大手生命保険会社所有物件で管理も大変良好で満足いただけると思います。石貼りの外観にエントランスの内装もこだわっており、グレード感が増します。基準階面積約145坪ですが約30坪の分割も可能なオフィスビル。
ストリートビューを表示 ▼
K.シオノのその他の募集階
|
|
賃料はこの物件の価格帯を表示しています。詳しい情報は電話・メールでお問い合わせください!
物件概要
| 物件名 | K.シオノ | ||
|---|---|---|---|
| 住所 | 大阪府大阪市中央区道修町3丁目1番6号 | ||
| 構造 (規模) | 鉄骨鉄筋コンクリート造地上8階建 | ||
| 坪数 | 築年月 | 1990年1月1日 | |
| 階数 | 空調タイプ | 個別 | |
| 保証金 | - | ||
| 敷金 | - | 礼金 | - |
| 沿線・最寄駅 |
地下鉄御堂筋線 淀屋橋駅 徒歩3分 (淀屋橋駅の賃貸事務所) 京阪線(本線・中之島線) 淀屋橋駅 徒歩5分 (淀屋橋駅の賃貸事務所) 地下鉄堺筋線 北浜駅 徒歩6分 (北浜駅の賃貸事務所) |
||
| 設備詳細 |
|
||
| EV基数 | 2基 | 人荷EV基数 | - |
| こだわり条件 |
|
||
| 備考 | ・新耐震基準適合 ・天井高2560mm ・大手保険会社がオーナー |
||
| アクセス | 新大阪駅まで電車12分 大阪駅梅田駅まで電車6分 関西空港まで電車52分、車46分 伊丹空港まで車19分 高速入口:環状線高麗橋入口 |
||
この物件の募集フロア
K.シオノ
- この物件へのお問い合わせはこちら


〒541-0048
大阪市中央区瓦町3丁目4番3号
瓦町公洋ビル6階
TEL:06-6231-4600
FAX:06-6231-4630
- 電話で取り急ぎ物件情報を聞く

- 物件コード:A105308
- 物件コードを電話でお伝えください






