淀屋橋竹村/1階 14.18坪 物件コード:A102407
- 電話で取り急ぎ物件情報を聞く
- 0120-366-200
- 物件コードを電話でお伝えください
物件コード:A102407


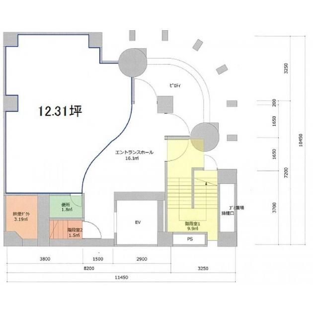
間取り図
おすすめポイント

- 淀屋橋竹村淀屋橋ビルは淀屋橋駅2分、肥後橋駅4分のビルです。周辺は大手企業が密集するエリアです。基準階面積34坪のワンフロアーワンテナントビル。外観、貸室内ともにコンクリート打ちっぱなしのおしゃれな造りになっています。室内に水回りもあるため、エステやマッサージなどの空中店舗も相談可能です。
ストリートビューを表示 ▼
- この物件の賃料の価格帯(共益費込)
- @30,001円/坪以上
淀屋橋竹村のその他の募集階
賃料はこの物件の価格帯を表示しています。詳しい情報は電話・メールでお問い合わせください!
物件概要
| 物件名 | 淀屋橋竹村 | ||
|---|---|---|---|
| 住所 | 大阪府大阪市中央区今橋4丁目5番20号
淀屋橋・北浜でよく検索されるその他の物件 |
||
| 構造 (規模) | 鉄筋コンクリート造地上7階地下1階建 | ||
| 坪数 | 14.18坪 | 築年月 | 1989年2月1日 |
| 階数 | 1階 | 空調タイプ | 個別 |
| 保証金 | - | ||
| 敷金 | 賃料の10カ月分 | 礼金 | - |
| 沿線・最寄駅 |
地下鉄御堂筋線 淀屋橋駅 徒歩2分 (淀屋橋駅の賃貸事務所) 京阪線(本線・中之島線) 淀屋橋駅 徒歩4分 (淀屋橋駅の賃貸事務所) 地下鉄四つ橋線 肥後橋駅 徒歩4分 (肥後橋駅の賃貸事務所) |
||
| 設備詳細 |
|
||
| EV基数 | 1基 | 人荷EV基数 | - |
| こだわり条件 |
|
||
| 備考 | ・駅近・角ビル ・新耐震基準適合・デザイナーズ ・空中店舗可・1フロア1テナント |
||
| アクセス | 新大阪駅まで電車12分 大阪駅梅田駅まで電車7分 関西空港まで電車53分、車49分 伊丹空港まで車25分 高速入口:環状線堂島入口 |
||
この物件の募集フロア
淀屋橋竹村
パノラマビュー
- この物件へのお問い合わせはこちら


〒541-0048
大阪市中央区瓦町3丁目4番3号
瓦町公洋ビル6階
TEL:06-6231-4600
FAX:06-6231-4630
- 電話で取り急ぎ物件情報を聞く

- 物件コード:A102407
- 物件コードを電話でお伝えください






