OBT/2階 47.45坪 物件コード:G304135
- 電話で取り急ぎ物件情報を聞く
- 0120-366-200
- 物件コードを電話でお伝えください
物件コード:G304135


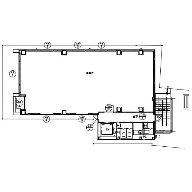
間取り図
おすすめポイント

- 天王寺駅からも徒歩圏内の2025年12月竣工の新築オフィスビル。天井が高く快適なオフィス空間。特に2階はフルハイトの窓面が開放感があります。ワンフロアワンテナントで独立性の高い仕様。
ストリートビューを表示 ▼
- この物件の賃料の価格帯(共益費込)
- @8,001円/坪~@12,000円/坪
OBTのその他の募集階
賃料はこの物件の価格帯を表示しています。詳しい情報は電話・メールでお問い合わせください!
物件概要
| 物件名 | OBT | ||
|---|---|---|---|
| 住所 | 大阪府大阪市天王寺区国分町8番13号
でよく検索されるその他の物件 |
||
| 構造 (規模) | 鉄骨造地上6階建 | ||
| 坪数 | 47.45坪 | 築年月 | 2025年12月 |
| 階数 | 2階 | 空調タイプ | 個別 |
| 保証金 | - | ||
| 敷金 | 賃料の3カ月分 | 礼金 | - |
| 沿線・最寄駅 | JR大阪環状線 徒歩7分 JR大阪環状線 徒歩12分 地下鉄御堂筋線 徒歩15分 | ||
| 設備詳細 |
|
||
| EV基数 | 1基 | 人荷EV基数 | - |
| こだわり条件 |
|
||
| 備考 | ・天井高さ2,800㎜・ワンフロアワンテナント | ||
| アクセス | 新大阪駅まで電車45分 大阪駅梅田駅まで電車35分 関西空港まで電車55分、車45分 伊丹空港まで車25分 |
||
この物件の募集フロア
OBT
- この物件へのお問い合わせはこちら


〒541-0048
大阪市中央区瓦町3丁目4番3号
瓦町公洋ビル6階
TEL:06-6231-4600
FAX:06-6231-4630
- 電話で取り急ぎ物件情報を聞く

- 物件コード:G304135
- 物件コードを電話でお伝えください
類似物件のご紹介
「OBT」とエリア、賃料、広さが類似した物件をご紹介しております。
田中1丁目倉庫
- 大阪府大阪市港区田中1丁目8番9号
- 41.11坪(135.90m²)
- @8,001円/坪
~@12,000円/坪 -
地下鉄中央線 弁天町駅 徒歩17分
JR大阪環状線 弁天町駅 徒歩19分
リアライズ堺筋本町(旧:三星中央)
- 大阪府大阪市中央区久太郎町1丁目5番31号
- 42.47坪(140.40m²)
- @8,001円/坪
~@12,000円/坪 -
地下鉄堺筋線 堺筋本町駅 徒歩3分
地下鉄中央線 堺筋本町駅 徒歩3分
88堂島ウイング
- 大阪府大阪市北区西天満3丁目3番10号
- 47.16坪(155.90m²)
- @8,001円/坪
~@12,000円/坪 -
京阪線(本線・中之島線) 北浜駅 徒歩6分
地下鉄堺筋線 南森町駅 徒歩8分
アイデム西本町第2
- 大阪府大阪市西区西本町1丁目13番40号
- 48.2坪(159.34m²)
- @8,001円/坪
~@12,000円/坪 -
地下鉄四つ橋線 本町駅 徒歩3分
地下鉄中央線 本町駅 徒歩4分






