第五芦池/1階 28.83坪 物件コード:A205337
- 電話で取り急ぎ物件情報を聞く
- 0120-366-200
- 物件コードを電話でお伝えください
物件コード:A205337


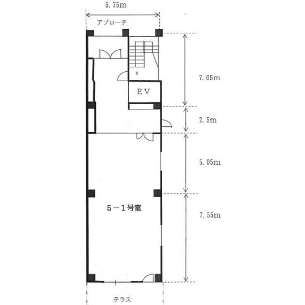
間取り図
おすすめポイント

- 大阪メトロ御堂筋線「心斎橋駅」徒歩3分の立地に位置するビル。ワンフロアー約34坪のワンフロアーワンテナントでの貸出が基本です。空中店舗としての利用も相談可能ですので業種についてご相談ください。
ストリートビューを表示 ▼
- この物件の賃料の価格帯(共益費込)
- この部屋は成約済みです
第五芦池のその他の募集階
賃料はこの物件の価格帯を表示しています。詳しい情報は電話・メールでお問い合わせください!
物件概要
| 物件名 | 第五芦池 | ||
|---|---|---|---|
| 住所 | 大阪府大阪市中央区南船場3丁目6番27号 | ||
| 構造 (規模) | 鉄骨造地上8階建 | ||
| 坪数 | 28.83坪 | 築年月 | 1993年4月1日 |
| 階数 | 1階 | 空調タイプ | 個別 |
| 保証金 | - | ||
| 敷金 | - | 礼金 | - |
| 沿線・最寄駅 |
地下鉄御堂筋線 心斎橋駅 徒歩3分 (心斎橋駅の賃貸事務所) 地下鉄長堀鶴見緑地線 心斎橋駅 徒歩3分 (心斎橋駅の賃貸事務所) 地下鉄堺筋線 長堀橋駅 徒歩7分 (長堀橋駅の賃貸事務所) |
||
| 設備詳細 |
|
||
| EV基数 | 1基 | 人荷EV基数 | - |
| こだわり条件 |
|
||
| 備考 | |||
| アクセス | 新大阪駅まで電車16分 大阪駅梅田駅まで電車10分 関西空港まで電車50分、車48分 伊丹空港まで車25分 高速入口:環状線信濃橋・阿波座・長堀 入口 |
||
この物件の募集フロア
第五芦池
- この物件へのお問い合わせはこちら


〒541-0048
大阪市中央区瓦町3丁目4番3号
瓦町公洋ビル6階
TEL:06-6231-4600
FAX:06-6231-4630
- 電話で取り急ぎ物件情報を聞く

- 物件コード:A205337
- 物件コードを電話でお伝えください
類似物件のご紹介
「第五芦池」とエリア、賃料、広さが類似した物件をご紹介しております。
四ツ橋セントラル
- 大阪府大阪市西区新町1丁目3番12号
- 32.6坪(107.77m²)
- @12,001円/坪
~@15,000円/坪 -
地下鉄四つ橋線 四ツ橋駅 徒歩2分
地下鉄長堀鶴見緑地線 心斎橋駅 徒歩4分
中博(ナカヒロ)
- 大阪府大阪市中央区博労町2丁目4番11号
- 24.724坪(81.73m²)
- @12,001円/坪
~@15,000円/坪 -
地下鉄堺筋線 堺筋本町駅 徒歩4分
地下鉄堺筋線 堺筋本町駅 徒歩4分
四ツ橋セントラル
- 大阪府大阪市西区新町1丁目3番12号
- 32.6坪(107.77m²)
- @12,001円/坪
~@15,000円/坪 -
地下鉄四つ橋線 四ツ橋駅 徒歩2分
地下鉄長堀鶴見緑地線 心斎橋駅 徒歩4分
心斎橋西
- 大阪府大阪市中央区西心斎橋1丁目1番11号
- 23.61坪(78.05m²)
- @12,001円/坪
~@15,000円/坪 -
地下鉄御堂筋線 心斎橋駅 徒歩1分
地下鉄長堀鶴見緑地線 心斎橋駅 徒歩1分
フェニックス南船場
- 大阪府大阪市中央区南船場2丁目1番3号
- 32.11坪(106.15m²)
- @12,001円/坪
~@15,000円/坪 -
地下鉄堺筋線 長堀橋駅 徒歩2分
地下鉄長堀鶴見緑地線 長堀橋駅 徒歩2分
菅田
- 大阪府大阪市中央区南船場3丁目7番30号
- 25.27坪(83.54m²)
- @12,001円/坪
~@15,000円/坪 -
地下鉄御堂筋線 心斎橋駅 徒歩3分
地下鉄長堀鶴見緑地線 心斎橋駅 徒歩3分






