SC堺筋本町/8階 167.03坪 物件コード:A202109
- 電話で取り急ぎ物件情報を聞く
- 0120-366-200
- 物件コードを電話でお伝えください
物件コード:A202109


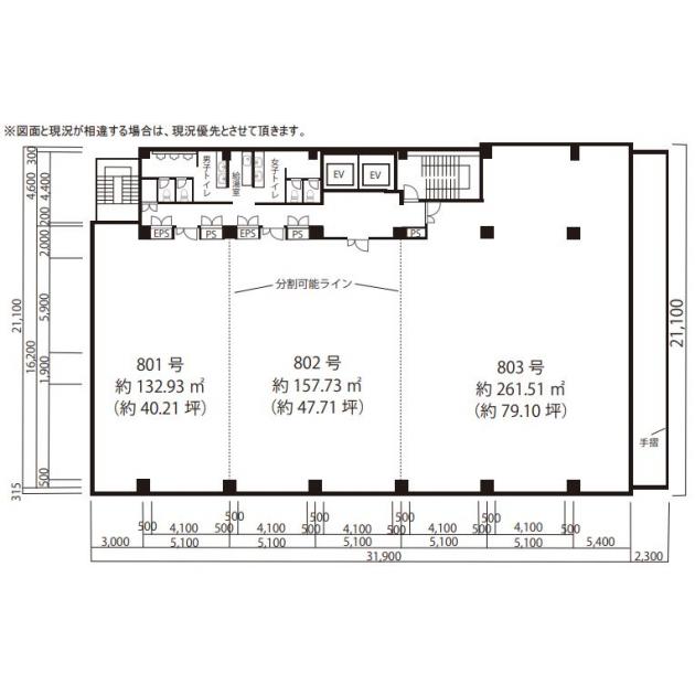
間取り図
おすすめポイント

- 堺筋本町から徒歩3分の好立地で長堀橋までも徒歩圏内。ビル設備も個別空調、機械警備、OAフロアなど充実の設備が魅力的なオフィスビル。。基準階約200坪の貸室面積、20~30坪台への分割対応も可能です。天井高2,900mmあり開放感のある貸室がご提供できます。
ストリートビューを表示 ▼
- この物件の賃料の価格帯(共益費込)
- この部屋は成約済みです
SC堺筋本町のその他の募集階
賃料はこの物件の価格帯を表示しています。詳しい情報は電話・メールでお問い合わせください!
物件概要
| 物件名 | SC堺筋本町 | ||
|---|---|---|---|
| 住所 | 大阪府大阪市中央区北久宝寺町1丁目4番15号 | ||
| 構造 (規模) | 鉄骨・鉄筋コンクリート造地上9階建 | ||
| 坪数 | 167.03坪 | 築年月 | 1998年3月1日 |
| 階数 | 8階 | 空調タイプ | 個別 |
| 保証金 | - | ||
| 敷金 | - | 礼金 | - |
| 沿線・最寄駅 |
地下鉄堺筋線 堺筋本町駅 徒歩4分 (堺筋本町駅の賃貸事務所) 地下鉄中央線 堺筋本町駅 徒歩4分 (堺筋本町駅の賃貸事務所) 地下鉄御堂筋線 本町駅 徒歩9分 (本町駅の賃貸事務所) |
||
| 設備詳細 |
|
||
| EV基数 | 2基 | 人荷EV基数 | - |
| こだわり条件 |
|
||
| 備考 | |||
| アクセス | 新大阪駅まで電車18分 大阪駅梅田駅まで電車12分 関西空港まで電車55分、車48分 伊丹空港まで車20分 高速入口:環状線信濃橋・阿波座・長堀 入口 |
||
この物件の募集フロア
SC堺筋本町
- この物件へのお問い合わせはこちら


〒541-0048
大阪市中央区瓦町3丁目4番3号
瓦町公洋ビル6階
TEL:06-6231-4600
FAX:06-6231-4630
- 電話で取り急ぎ物件情報を聞く

- 物件コード:A202109
- 物件コードを電話でお伝えください
類似物件のご紹介
「SC堺筋本町」とエリア、賃料、広さが類似した物件をご紹介しております。
五味(ゴミ)
- 大阪府大阪市中央区久太郎町2丁目5番13号
- 136.86坪(452.43m²)
- @8,001円/坪
~@12,000円/坪 -
地下鉄堺筋線 堺筋本町駅 徒歩3分
地下鉄中央線 堺筋本町駅 徒歩3分
トヤマ中央館(新トヤマ)
- 大阪府大阪市中央区安土町1丁目7番20号
- 142.95坪(472.56m²)
- @8,001円/坪
~@12,000円/坪 -
地下鉄堺筋線 堺筋本町駅 徒歩1分
地下鉄中央線 堺筋本町駅 徒歩3分






