北浜平和/3階 50.6坪 物件コード:A101220
- 電話で取り急ぎ物件情報を聞く
- 0120-366-200
- 物件コードを電話でお伝えください
物件コード:A101220


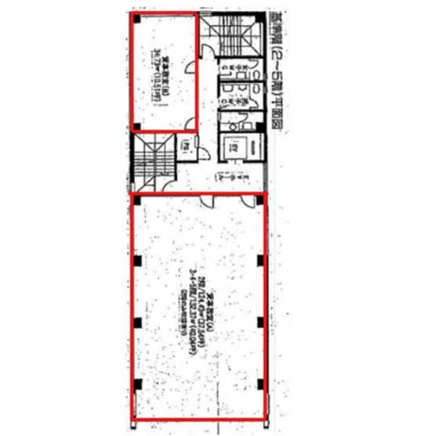
間取り図
おすすめポイント

- 北浜平和ビルは北浜駅徒歩2分、淀屋橋駅徒歩4分の北浜駅・淀屋橋駅のほぼ真ん中にあり通勤にも大変便利なビル。石張りの外観・エントランスに重厚感があり、大変落ち着いた印象を持つビルです。前面道路が広くとられていますので、荷物の積み降ろしもストレスフリー。管理も行き届いており、気持ちよくご入居頂けます。
ストリートビューを表示 ▼
- この物件の賃料の価格帯(共益費込)
- @8,001円/坪~@12,000円/坪
北浜平和のその他の募集階
|
|
賃料はこの物件の価格帯を表示しています。詳しい情報は電話・メールでお問い合わせください!
物件概要
| 物件名 | 北浜平和 | ||
|---|---|---|---|
| 住所 | 大阪府大阪市中央区北浜2丁目5番13号
淀屋橋・北浜でよく検索されるその他の物件 |
||
| 構造 (規模) | 鉄骨鉄筋コンクリート造地上9階地下1階建 | ||
| 坪数 | 50.6坪 | 築年月 | 1989年2月1日 |
| 階数 | 3階 | 空調タイプ | 個別 |
| 保証金 | - | ||
| 敷金 | 賃料の8カ月分 | 礼金 | - |
| 沿線・最寄駅 |
地下鉄堺筋線 北浜駅 徒歩2分 (北浜駅の賃貸事務所) 京阪線(本線・中之島線) 北浜駅 徒歩2分 (北浜駅の賃貸事務所) 地下鉄御堂筋線 淀屋橋駅 徒歩4分 (淀屋橋駅の賃貸事務所) |
||
| 設備詳細 |
|
||
| EV基数 | 1基 | 人荷EV基数 | - |
| こだわり条件 |
|
||
| 備考 | ・駅近・新耐震基準適合 ・1フロア2テナント |
||
| アクセス | 新大阪駅まで電車12分 大阪駅梅田駅まで電車7分 関西空港まで電車55分、車46分 伊丹空港まで車25分 高速入口:環状線高麗橋入口 |
||
この物件の募集フロア
北浜平和
- この物件へのお問い合わせはこちら


〒541-0048
大阪市中央区瓦町3丁目4番3号
瓦町公洋ビル6階
TEL:06-6231-4600
FAX:06-6231-4630
- 電話で取り急ぎ物件情報を聞く

- 物件コード:A101220
- 物件コードを電話でお伝えください
類似物件のご紹介
「北浜平和」とエリア、賃料、広さが類似した物件をご紹介しております。
大明(たいめい)
- 大阪府大阪市中央区平野町4丁目6番3号
- 43.49坪(143.77m²)
- @8,001円/坪
~@12,000円/坪 -
地下鉄御堂筋線 淀屋橋駅 徒歩5分
地下鉄四つ橋線 肥後橋駅 徒歩5分
KCI平野町
- 大阪府大阪市中央区平野町2丁目4番11号
- 57.46坪(189.95m²)
- @8,001円/坪
~@12,000円/坪 -
地下鉄堺筋線 北浜駅 徒歩4分
京阪線(本線・中之島線) 北浜駅 徒歩6分
大明(たいめい)
- 大阪府大阪市中央区平野町4丁目6番3号
- 43.49坪(143.77m²)
- @8,001円/坪
~@12,000円/坪 -
地下鉄御堂筋線 淀屋橋駅 徒歩5分
地下鉄四つ橋線 肥後橋駅 徒歩5分
イシモト
- 大阪府大阪市中央区平野町2丁目2番8号
- 42.04坪(138.98m²)
- @8,001円/坪
~@12,000円/坪 -
地下鉄堺筋線 北浜駅 徒歩3分
京阪線(本線・中之島線) 北浜駅 徒歩5分
サン北浜
- 大阪府大阪市中央区北浜3丁目1番6号
- 57.69坪(190.71m²)
- @8,001円/坪
~@12,000円/坪 -
地下鉄御堂筋線 淀屋橋駅 徒歩1分
京阪線(本線・中之島線) 淀屋橋駅 徒歩1分






