大阪TK/5階 53.45坪 物件コード:A106317
- 電話で取り急ぎ物件情報を聞く
- 0120-366-200
- 物件コードを電話でお伝えください
物件コード:A106317


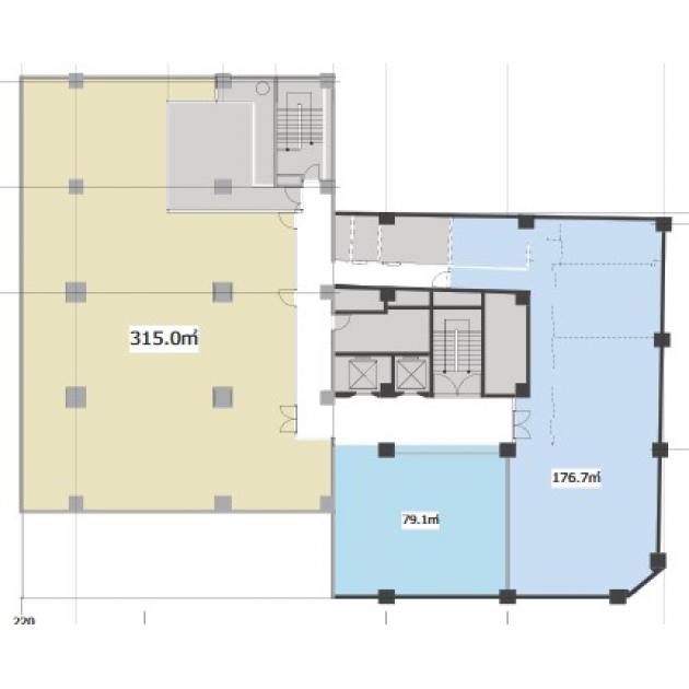
間取り図
おすすめポイント

- 大阪メトロ御堂筋線「淀屋橋駅」徒歩3分の好立地ビル。角地に建つ管理の良い中型規模のビルです。1階にはカフェが入居しているため、ちょっとした商談にも利用できます。また、平面駐車場と駐輪場が併設されているため、ハイルーフ車もとめられるアグレッシブさもあります。
ストリートビューを表示 ▼
- この物件の賃料の価格帯(共益費込)
- @12,001円/坪~@15,000円/坪
大阪TKのその他の募集階
賃料はこの物件の価格帯を表示しています。詳しい情報は電話・メールでお問い合わせください!
物件概要
| 物件名 | 大阪TK | ||
|---|---|---|---|
| 住所 | 大阪府大阪市中央区平野町3丁目4番14号
淀屋橋・北浜でよく検索されるその他の物件 |
||
| 構造 (規模) | 鉄筋鉄骨コンクリート造地上7階地下1階建 | ||
| 坪数 | 53.45坪 | 築年月 | 1969年5月15日 |
| 階数 | 5階 | 空調タイプ | 集中 |
| 保証金 | 相談 | ||
| 敷金 | 賃料の12カ月分 | 礼金 | - |
| 沿線・最寄駅 |
地下鉄御堂筋線 淀屋橋駅 徒歩3分 (淀屋橋駅の賃貸事務所) 地下鉄堺筋線 北浜駅 徒歩6分 (北浜駅の賃貸事務所) 京阪線(本線・中之島線) 淀屋橋駅 徒歩6分 (淀屋橋駅の賃貸事務所) |
||
| 設備詳細 |
|
||
| EV基数 | 2基 | 人荷EV基数 | - |
| こだわり条件 |
|
||
| 備考 | ・角ビル・ハイルーフ対応平面駐車場有り ・駐輪場有り・1階にカフェ有り |
||
| アクセス | 新大阪駅まで電車11分 大阪駅梅田駅まで電車6分 関西空港まで電車54分、車51分 伊丹空港まで車25分 高速入口:環状線高麗橋・信濃橋入口 |
||
この物件の募集フロア
大阪TK
- この物件へのお問い合わせはこちら


〒541-0048
大阪市中央区瓦町3丁目4番3号
瓦町公洋ビル6階
TEL:06-6231-4600
FAX:06-6231-4630
- 電話で取り急ぎ物件情報を聞く

- 物件コード:A106317
- 物件コードを電話でお伝えください
類似物件のご紹介
「大阪TK」とエリア、賃料、広さが類似した物件をご紹介しております。
大阪朝日生命館
- 大阪府大阪市中央区高麗橋4丁目2番16号
- 46坪(152.07m²)
- @12,001円/坪
~@15,000円/坪 -
地下鉄御堂筋線 淀屋橋駅 徒歩1分
京阪線(本線・中之島線) 淀屋橋駅 徒歩2分
EM北浜
- 大阪府大阪市中央区北浜1丁目9番15号
- 59.63坪(197.12m²)
- @12,001円/坪
~@15,000円/坪 -
地下鉄堺筋線 北浜駅 徒歩1分
京阪線(本線・中之島線) 北浜駅 徒歩1分
入商八木
- 大阪府大阪市中央区北浜2丁目3番9号
- 54.15坪(179.01m²)
- @12,001円/坪
~@15,000円/坪 -
地下鉄堺筋線 北浜駅 徒歩1分
京阪線(本線・中之島線) 北浜駅 徒歩1分
assess大手通
- 大阪府大阪市中央区大手通2丁目4番8号
- 56.47坪(186.68m²)
- @12,001円/坪
~@15,000円/坪 -
地下鉄谷町線 谷町四丁目駅 徒歩9分
地下鉄堺筋線 堺筋本町駅 徒歩10分
堺筋北浜宗田
- 大阪府大阪市中央区今橋1丁目7番14号
- 48.18坪(159.27m²)
- @12,001円/坪
~@15,000円/坪 -
地下鉄堺筋線 北浜駅 徒歩1分
京阪線(本線・中之島線) 北浜駅 徒歩1分






