堂島松本/4階 41.07坪 物件コード:C303307
- 電話で取り急ぎ物件情報を聞く
- 0120-366-200
- 物件コードを電話でお伝えください
物件コード:C303307


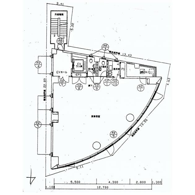
間取り図
おすすめポイント

- 国道2号線、曽根崎通沿いの交差点に建つ視認性の高いテナントビル。1階にはゴルフショップが入居中。広さ41坪程度のワンフロアワンテナント仕様。前面道路側に窓面を広く設けており、眺望もよく採光良好な明るい貸室です。
ストリートビューを表示 ▼
- この物件の賃料の価格帯(共益費込)
- @8,001円/坪~@12,000円/坪
堂島松本のその他の募集階
賃料はこの物件の価格帯を表示しています。詳しい情報は電話・メールでお問い合わせください!
物件概要
| 物件名 | 堂島松本 | ||
|---|---|---|---|
| 住所 | 大阪府大阪市北区堂島3丁目3番22号
西梅田・堂島・福島でよく検索されるその他の物件 |
||
| 構造 (規模) | 鉄骨鉄筋コンクリート造地上9階建 | ||
| 坪数 | 41.07坪 | 築年月 | 1997年7月1日 |
| 階数 | 4階 | 空調タイプ | 個別 |
| 保証金 | - | ||
| 敷金 | 賃料の10カ月分 | 礼金 | - |
| 沿線・最寄駅 |
地下鉄四つ橋線 西梅田駅 徒歩7分 (西梅田駅の賃貸事務所) JR大阪環状線 福島駅 徒歩7分 (福島駅の賃貸事務所) JR東西線 北新地駅 徒歩6分 (北新地駅の賃貸事務所) |
||
| 設備詳細 |
|
||
| EV基数 | 1基 | 人荷EV基数 | - |
| こだわり条件 |
|
||
| 備考 | |||
| アクセス | 新大阪駅まで電車17分 大阪駅梅田駅まで電車11分 関西空港まで電車61分、車45分 伊丹空港まで車20分 高速入口:環状線堂島・中之島入口 |
||
この物件の募集フロア
堂島松本
- この物件へのお問い合わせはこちら


〒541-0048
大阪市中央区瓦町3丁目4番3号
瓦町公洋ビル6階
TEL:06-6231-4600
FAX:06-6231-4630
- 電話で取り急ぎ物件情報を聞く

- 物件コード:C303307
- 物件コードを電話でお伝えください
類似物件のご紹介
「堂島松本」とエリア、賃料、広さが類似した物件をご紹介しております。
甲南アセット中之島
- 大阪府大阪市北区中之島4丁目2番28号
- 40.44坪(133.69m²)
- @8,001円/坪
~@12,000円/坪 -
京阪線(本線・中之島線) 中之島駅 徒歩2分
地下鉄四つ橋線 肥後橋駅 徒歩6分






