桜橋西/1階 30.91坪 物件コード:C302208
- 電話で取り急ぎ物件情報を聞く
- 0120-366-200
- 物件コードを電話でお伝えください
物件コード:C302208


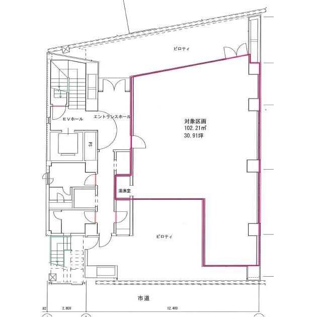
間取り図
おすすめポイント

- 地下鉄四つ橋線すぐ、大通り沿いに面した正統派オフィスビル。基準階面積は約60坪、2分割まで対応可能。窓面が広く管理も行き届いているので、快適なオフィス空間で過ごせます。複数線・駅のが徒歩圏内ですので通勤も大変便利です
ストリートビューを表示 ▼
- この物件の賃料の価格帯(共益費込)
- この部屋は成約済みです
桜橋西のその他の募集階
|
|
賃料はこの物件の価格帯を表示しています。詳しい情報は電話・メールでお問い合わせください!
物件概要
| 物件名 | 桜橋西 | ||
|---|---|---|---|
| 住所 | 大阪府大阪市北区曽根崎新地2丁目3番3号 | ||
| 構造 (規模) | 鉄骨鉄筋コンクリート造地上9階地下1階塔屋1階建 | ||
| 坪数 | 30.91坪 | 築年月 | 1989年2月1日 |
| 階数 | 1階 | 空調タイプ | 個別 |
| 保証金 | - | ||
| 敷金 | - | 礼金 | - |
| 沿線・最寄駅 |
地下鉄四つ橋線 西梅田駅 徒歩2分 (西梅田駅の賃貸事務所) JR東西線 北新地駅 徒歩2分 (北新地駅の賃貸事務所) JR大阪環状線 大阪駅 徒歩6分 (大阪駅の賃貸事務所) |
||
| 設備詳細 |
|
||
| EV基数 | 1基 | 人荷EV基数 | - |
| こだわり条件 |
|
||
| 備考 | |||
| アクセス | 新大阪駅まで電車10分 大阪駅梅田駅まで電車4分 関西空港まで電車59分、車45分 伊丹空港まで車20分 高速入口:環状線堂島・梅田入口 |
||
この物件の募集フロア
桜橋西
- この物件へのお問い合わせはこちら


〒541-0048
大阪市中央区瓦町3丁目4番3号
瓦町公洋ビル6階
TEL:06-6231-4600
FAX:06-6231-4630
- 電話で取り急ぎ物件情報を聞く

- 物件コード:C302208
- 物件コードを電話でお伝えください






