堂島グランド/2階 29.99坪 物件コード:C303110
- 電話で取り急ぎ物件情報を聞く
- 0120-366-200
- 物件コードを電話でお伝えください
物件コード:C303110


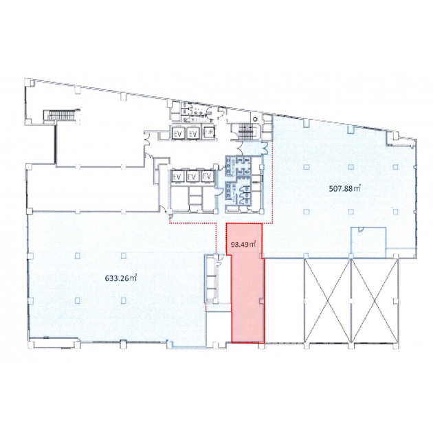
間取り図
おすすめポイント

- 大阪メトロ四つ橋線「西梅田駅」徒歩4分の立地に位置する基準階面積約650坪の大型ビル。四ツ橋筋に面しビジネス環境は良好です。堂島地下街に直結し交通アクセスも便利。耐震補強工事完了済み、各貸室に非常用コンセントが一つ設置済みです。
ストリートビューを表示 ▼
- この物件の賃料の価格帯(共益費込)
- @15,001円/坪~@20,000円/坪
堂島グランドのその他の募集階
|
|
賃料はこの物件の価格帯を表示しています。詳しい情報は電話・メールでお問い合わせください!
物件概要
| 物件名 | 堂島グランド | ||
|---|---|---|---|
| 住所 | 大阪府大阪市北区堂島1丁目5番17号
梅田・西梅田・堂島・福島でよく検索されるその他の物件 |
||
| 構造 (規模) | 鉄骨鉄筋コンクリート造地上9階地下1階建 新耐震基準 | ||
| 坪数 | 29.99坪 | 築年月 | 1979年6月1日 |
| 階数 | 2階 | 空調タイプ | 集中+個別 |
| 保証金 | - | ||
| 敷金 | 賃料の12カ月分 | 礼金 | - |
| 沿線・最寄駅 |
地下鉄四つ橋線 西梅田駅 徒歩4分 (西梅田駅の賃貸事務所) JR大阪環状線 大阪駅 徒歩7分 (大阪駅の賃貸事務所) JR東西線 北新地駅 徒歩3分 (北新地駅の賃貸事務所) |
||
| 設備詳細 |
|
||
| EV基数 | 6基 | 人荷EV基数 | 1基 |
| こだわり条件 |
|
||
| 備考 | |||
| アクセス | 新大阪駅まで電車13分 大阪駅梅田駅まで電車7分 関西空港まで電車59分、車45分 伊丹空港まで車20分 高速入口:環状線堂島・梅田入口 |
||
この物件の募集フロア
堂島グランド
- この物件へのお問い合わせはこちら


〒541-0048
大阪市中央区瓦町3丁目4番3号
瓦町公洋ビル6階
TEL:06-6231-4600
FAX:06-6231-4630
- 電話で取り急ぎ物件情報を聞く

- 物件コード:C303110
- 物件コードを電話でお伝えください
類似物件のご紹介
「堂島グランド」とエリア、賃料、広さが類似した物件をご紹介しております。
フジヒサFJ中之島
- 大阪府大阪市北区中之島4丁目3番25号
- 33.38坪(110.35m²)
- @15,001円/坪
~@20,000円/坪 -
京阪線(本線・中之島線) 中之島駅 徒歩1分
JR東西線 新福島駅 徒歩7分






