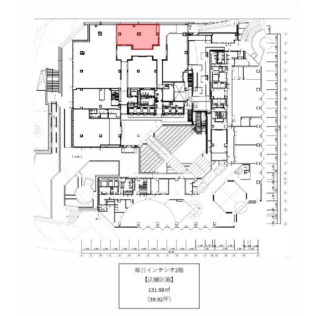
毎日インテシオ/2階 39.93坪 物件コード:C301305
- 電話で取り急ぎ物件情報を聞く
- 0120-366-200
- 物件コードを電話でお伝えください
物件コード:C301305


間取り図
おすすめポイント

- JR大阪駅などのターミナルと地下で直結するインテリジェントビル、ワンフロアは380坪。貸会議室・貸ホールも完備、震度7に耐える制震システム「アンボンドブレース」を採用するほか、屋上にはヘリポートを設置して災害に備えるなど、最大限の安心安全を提供するハイスペックオフィスです。
ストリートビューを表示 ▼
- この物件の賃料の価格帯(共益費込)
- この部屋は成約済みです
毎日インテシオのその他の募集階
|
|
賃料はこの物件の価格帯を表示しています。詳しい情報は電話・メールでお問い合わせください!
物件概要
| 物件名 | 毎日インテシオ | ||
|---|---|---|---|
| 住所 | 大阪府大阪市北区梅田3丁目4番5号 | ||
| 構造 (規模) | 鉄骨鉄筋コンクリート造地上21階地下6階建 | ||
| 坪数 | 39.93坪 | 築年月 | 2007年7月1日 |
| 階数 | 2階 | 空調タイプ | 集中 |
| 保証金 | - | ||
| 敷金 | - | 礼金 | - |
| 沿線・最寄駅 |
地下鉄四つ橋線 西梅田駅 徒歩5分 (西梅田駅の賃貸事務所) JR東西線 北新地駅 徒歩5分 (北新地駅の賃貸事務所) JR大阪環状線 福島駅 徒歩5分 (福島駅の賃貸事務所) |
||
| 設備詳細 |
|
||
| EV基数 | 7基 | 人荷EV基数 | 1基 |
| こだわり条件 |
|
||
| 備考 | |||
| アクセス | 新大阪駅まで電車14分 大阪駅梅田駅まで電車8分 関西空港まで電車62分、車45分 伊丹空港まで車20分 高速入口:環状線梅田・堂島入口 |
||
この物件の募集フロア
毎日インテシオ
- この物件へのお問い合わせはこちら


〒541-0048
大阪市中央区瓦町3丁目4番3号
瓦町公洋ビル6階
TEL:06-6231-4600
FAX:06-6231-4630
- 電話で取り急ぎ物件情報を聞く

- 物件コード:C301305
- 物件コードを電話でお伝えください
類似物件のご紹介
「毎日インテシオ」とエリア、賃料、広さが類似した物件をご紹介しております。
堂北ビルディング(サンアール堂北)
- 大阪府大阪市北区堂島2丁目3番2号
- 47.37坪(156.60m²)
- @12,001円/坪
~@15,000円/坪 -
地下鉄四つ橋線 西梅田駅 徒歩6分
JR東西線 北新地駅 徒歩4分
フジヒサFJ中之島
- 大阪府大阪市北区中之島4丁目3番25号
- 33.38坪(110.35m²)
- @15,001円/坪
~@20,000円/坪 -
京阪線(本線・中之島線) 中之島駅 徒歩1分
JR東西線 新福島駅 徒歩7分
マニュライフプレイス堂島
- 大阪府大阪市北区堂島浜1丁目4番19号
- 32.13坪(106.21m²)
- @20,001円/坪
~@30,000円/坪 -
地下鉄四つ橋線 西梅田駅 徒歩4分
JR東西線 北新地駅 徒歩3分
堂北ビルディング(サンアール堂北)
- 大阪府大阪市北区堂島2丁目3番2号
- 47.37坪(156.60m²)
- @12,001円/坪
~@15,000円/坪 -
地下鉄四つ橋線 西梅田駅 徒歩6分
JR東西線 北新地駅 徒歩4分






