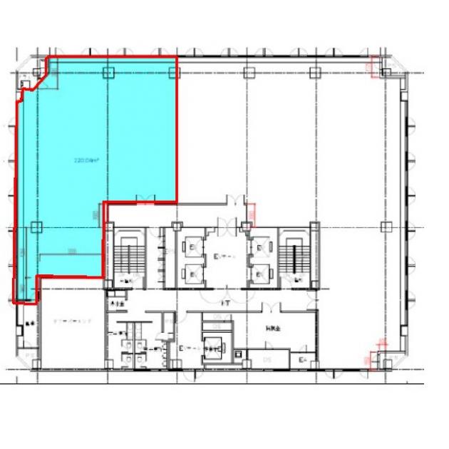
金鳥土佐堀/3階 66.56坪 物件コード:B101113
- 電話で取り急ぎ物件情報を聞く
- 0120-366-200
- 物件コードを電話でお伝えください
物件コード:B101113
ストリートビューを表示 ▼
- この物件の賃料の価格帯(共益費込)
- この部屋は成約済みです
金鳥土佐堀のその他の募集階
|
|
賃料はこの物件の価格帯を表示しています。詳しい情報は電話・メールでお問い合わせください!
物件概要
| 物件名 | 金鳥土佐堀 | ||
|---|---|---|---|
| 住所 | 大阪府大阪市西区土佐堀1丁目4番11号 | ||
| 構造 (規模) | 鉄骨鉄筋コンクリート造地上14階地下2階建 | ||
| 坪数 | 66.56坪 | 築年月 | 1988年11月1日 |
| 階数 | 3階 | 空調タイプ | 個別 |
| 保証金 | - | ||
| 敷金 | - | 礼金 | - |
| 沿線・最寄駅 |
地下鉄四つ橋線 肥後橋駅 徒歩4分 (肥後橋駅の賃貸事務所) 京阪線(本線・中之島線) 渡辺橋駅 徒歩6分 (渡辺橋駅の賃貸事務所) 地下鉄御堂筋線 淀屋橋駅 徒歩11分 (淀屋橋駅の賃貸事務所) |
||
| 設備詳細 |
|
||
| EV基数 | 4基 | 人荷EV基数 | 1基 |
| こだわり条件 |
|
||
| 備考 | 土佐堀通り沿いの大型ビルです。清潔感のある広いエントランスと管理の行き届いた共用部です。防災センターには管理人が常駐しております。2016年空調入替えで個別空調になりました。 | ||
| アクセス | 新大阪駅まで電車18分 大阪駅梅田駅まで電車12分 関西空港まで電車55分、車45分 伊丹空港まで車20分 高速入口:環状線堂島・中之島入口 |
||
この物件の募集フロア
金鳥土佐堀
- この物件へのお問い合わせはこちら


〒541-0048
大阪市中央区瓦町3丁目4番3号
瓦町公洋ビル6階
TEL:06-6231-4600
FAX:06-6231-4630
- 電話で取り急ぎ物件情報を聞く

- 物件コード:B101113
- 物件コードを電話でお伝えください
類似物件のご紹介
「金鳥土佐堀」とエリア、賃料、広さが類似した物件をご紹介しております。
肥後橋センター
- 大阪府大阪市西区江戸堀1丁目9番1号
- 65.72坪(217.26m²)
- @12,001円/坪
~@15,000円/坪 -
地下鉄四つ橋線 肥後橋駅 徒歩1分
地下鉄御堂筋線 淀屋橋駅 徒歩6分
江戸堀フコク生命
- 大阪府大阪市西区江戸堀2丁目6番33号
- 54.47坪(180.07m²)
- @8,001円/坪
~@12,000円/坪 -
地下鉄四つ橋線 肥後橋駅 徒歩8分
地下鉄四つ橋線 本町駅 徒歩8分
関電不動産西本町(旧JEI西本町)
- 大阪府大阪市西区阿波座1丁目3番15号
- 65.28坪(215.80m²)
- @15,001円/坪
~@20,000円/坪 -
地下鉄四つ橋線 本町駅 徒歩1分
地下鉄中央線 本町駅 徒歩3分
肥後橋ルーセント
- 大阪府大阪市西区京町堀1丁目6番2号
- 58.11坪(192.10m²)
- @8,001円/坪
~@12,000円/坪 -
地下鉄四つ橋線 肥後橋駅 徒歩2分
地下鉄御堂筋線 淀屋橋駅 徒歩5分









