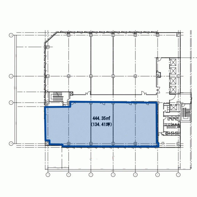
久太郎町恒和/10階 134.41坪 物件コード:A201214
- 電話で取り急ぎ物件情報を聞く
- 0120-366-200
- 物件コードを電話でお伝えください
物件コード:A201214


間取り図
おすすめポイント

- 中央大通り沿いに面した1フロアー330坪の大型物件。2017年に大規模なリニューアルを行いビルグレードも大幅アップ。貸室は20坪台からご用意も可能で支店立ち上げなどのスタートアップに賃貸することの可能。テナント様には嬉しい喫煙スペースやリフレッシュルーム完備しています。
ストリートビューを表示 ▼
- この物件の賃料の価格帯(共益費込)
- この部屋は成約済みです
久太郎町恒和のその他の募集階
賃料はこの物件の価格帯を表示しています。詳しい情報は電話・メールでお問い合わせください!
物件概要
| 物件名 | 久太郎町恒和 | ||
|---|---|---|---|
| 住所 | 大阪府大阪市中央区久太郎町2丁目5番28号 | ||
| 構造 (規模) | 鉄骨鉄筋コンクリート造地上12階地下3階建 | ||
| 坪数 | 134.41坪 | 築年月 | 1979年12月1日 |
| 階数 | 10階 | 空調タイプ | 個別 |
| 保証金 | - | ||
| 敷金 | - | 礼金 | - |
| 沿線・最寄駅 |
地下鉄堺筋線 堺筋本町駅 徒歩2分 (堺筋本町駅の賃貸事務所) 地下鉄中央線 堺筋本町駅 徒歩2分 (堺筋本町駅の賃貸事務所) 地下鉄御堂筋線 本町駅 徒歩4分 (本町駅の賃貸事務所) |
||
| 設備詳細 |
|
||
| EV基数 | 4基 | 人荷EV基数 | 1基 |
| こだわり条件 |
|
||
| 備考 | |||
| アクセス | 新大阪駅まで電車16分 大阪駅梅田駅まで電車10分 関西空港まで電車50分、車45分 伊丹空港まで車20分 高速入口:環状線信濃橋・阿波座・長堀 |
||
この物件の募集フロア
久太郎町恒和
部屋の詳細動画
パノラマビュー
- この物件へのお問い合わせはこちら


〒541-0048
大阪市中央区瓦町3丁目4番3号
瓦町公洋ビル6階
TEL:06-6231-4600
FAX:06-6231-4630
- 電話で取り急ぎ物件情報を聞く

- 物件コード:A201214
- 物件コードを電話でお伝えください
類似物件のご紹介
「久太郎町恒和」とエリア、賃料、広さが類似した物件をご紹介しております。
SC堺筋本町
- 大阪府大阪市中央区北久宝寺町1丁目4番15号
- 144.45坪(477.52m²)
- @8,001円/坪
~@12,000円/坪 -
地下鉄堺筋線 堺筋本町駅 徒歩4分
地下鉄中央線 堺筋本町駅 徒歩4分
五味(ゴミ)
- 大阪府大阪市中央区久太郎町2丁目5番13号
- 136.86坪(452.43m²)
- @8,001円/坪
~@12,000円/坪 -
地下鉄堺筋線 堺筋本町駅 徒歩3分
地下鉄中央線 堺筋本町駅 徒歩3分
御堂筋グランタワー
- 大阪府大阪市中央区博労町3丁目5番1号
- 134.52坪(444.69m²)
- @20,001円/坪
~@30,000円/坪 -
地下鉄御堂筋線 心斎橋駅 徒歩5分
地下鉄長堀鶴見緑地線 心斎橋駅 徒歩5分






