東亜/4階 150坪 物件コード:A112408
- 電話で取り急ぎ物件情報を聞く
- 0120-366-200
- 物件コードを電話でお伝えください
物件コード:A112408


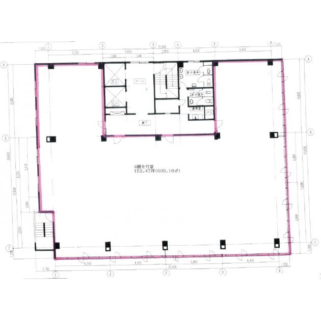
間取り図
おすすめポイント

- 中央大通りに面し、御堂筋線・中央線・四ツ橋線3線使用可能(各線1分)ビジネス環境は良好です。管理良好物件。最上階にはテナント向けの無償会議室もありますので、セミナーや面接などに使用することができます。コスパがいいビルですので、空き室が出てもすぐに成約となりますので、お早めにお問合せ下さい。
ストリートビューを表示 ▼
- この物件の賃料の価格帯(共益費込)
- この部屋は成約済みです
東亜のその他の募集階
|
|
賃料はこの物件の価格帯を表示しています。詳しい情報は電話・メールでお問い合わせください!
物件概要
| 物件名 | 東亜 | ||
|---|---|---|---|
| 住所 | 大阪府大阪市中央区南本町4丁目5番7号 | ||
| 構造 (規模) | 鉄筋コンクリート造地上13階地下1階建 | ||
| 坪数 | 150坪 | 築年月 | 1979年3月31日 |
| 階数 | 4階 | 空調タイプ | 個別 |
| 保証金 | - | ||
| 敷金 | - | 礼金 | - |
| 沿線・最寄駅 |
地下鉄御堂筋線 本町駅 徒歩2分 (本町駅の賃貸事務所) 地下鉄四つ橋線 本町駅 徒歩2分 (本町駅の賃貸事務所) 地下鉄中央線 本町駅 徒歩2分 (本町駅の賃貸事務所) |
||
| 設備詳細 |
|
||
| EV基数 | 2基 | 人荷EV基数 | - |
| こだわり条件 |
|
||
| 備考 | |||
| アクセス | 新大阪駅まで電車15分 大阪駅梅田駅まで電車9分 関西空港まで電車49分、車42分 伊丹空港まで車20分 高速入口:環状線信濃橋・阿波座 |
||
この物件の募集フロア
東亜
- この物件へのお問い合わせはこちら


〒541-0048
大阪市中央区瓦町3丁目4番3号
瓦町公洋ビル6階
TEL:06-6231-4600
FAX:06-6231-4630
- 電話で取り急ぎ物件情報を聞く

- 物件コード:A112408
- 物件コードを電話でお伝えください
類似物件のご紹介
「東亜」とエリア、賃料、広さが類似した物件をご紹介しております。
五味(ゴミ)
- 大阪府大阪市中央区久太郎町2丁目5番13号
- 136.86坪(452.43m²)
- @8,001円/坪
~@12,000円/坪 -
地下鉄堺筋線 堺筋本町駅 徒歩3分
地下鉄中央線 堺筋本町駅 徒歩3分
五味(ゴミ)
- 大阪府大阪市中央区久太郎町2丁目5番13号
- 136.86坪(452.43m²)
- @8,001円/坪
~@12,000円/坪 -
地下鉄堺筋線 堺筋本町駅 徒歩3分
地下鉄中央線 堺筋本町駅 徒歩3分
おおきにkokodesu瓦町4丁目
- 大阪府大阪市中央区瓦町4丁目4番8号
- 128.46坪(424.66m²)
- @8,001円/坪
~@12,000円/坪 -
地下鉄御堂筋線 本町駅 徒歩3分
地下鉄中央線 本町駅 徒歩5分






