大阪平和/1階 103.48坪 物件コード:A101110
- 電話で取り急ぎ物件情報を聞く
- 0120-366-200
- 物件コードを電話でお伝えください
物件コード:A101110


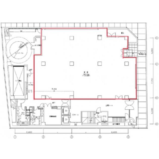
間取り図
おすすめポイント

- 大阪平和ビルは北浜駅徒歩1分で、大阪証券取引所ビルと同じオーナーが所有しており、大阪証券取引所ビルの南側に位置する物件です。金融関係の企業が多い北浜エリアに位置し、北浜駅からも近くで便利。公開空地が広い角ビルで重厚感があります。エントランスも広く、清掃が行き届いていますので清潔感があります。
ストリートビューを表示 ▼
- この物件の賃料の価格帯(共益費込)
- @12,001円/坪~@15,000円/坪
大阪平和のその他の募集階
|
|
賃料はこの物件の価格帯を表示しています。詳しい情報は電話・メールでお問い合わせください!
物件概要
| 物件名 | 大阪平和 | ||
|---|---|---|---|
| 住所 | 大阪府大阪市中央区北浜1丁目5番5号
淀屋橋・北浜でよく検索されるその他の物件 |
||
| 構造 (規模) | 鉄骨鉄筋コンクリート造地上7階地下1階搭屋1階建 | ||
| 坪数 | 103.48坪 | 築年月 | 1987年4月1日 |
| 階数 | 1階 | 空調タイプ | 集中+個別 |
| 保証金 | - | ||
| 敷金 | 賃料の12カ月分 | 礼金 | - |
| 沿線・最寄駅 |
地下鉄堺筋線 北浜駅 徒歩1分 (北浜駅の賃貸事務所) 京阪線(本線・中之島線) 北浜駅 徒歩1分 (北浜駅の賃貸事務所) 地下鉄御堂筋線 淀屋橋駅 徒歩6分 (淀屋橋駅の賃貸事務所) |
||
| 設備詳細 |
|
||
| EV基数 | 2基 | 人荷EV基数 | - |
| こだわり条件 |
|
||
| 備考 | ・駅近・新耐震基準適合 ・角ビル・平成24年にエレベーター改修 ・全館LED照明化 |
||
| アクセス | 新大阪駅まで電車12分 大阪駅梅田駅まで電車7分 関西空港まで電車51分、車48分 伊丹空港まで車25分 高速入口:環状線高麗橋入口 |
||
この物件の募集フロア
大阪平和
- この物件へのお問い合わせはこちら


〒541-0048
大阪市中央区瓦町3丁目4番3号
瓦町公洋ビル6階
TEL:06-6231-4600
FAX:06-6231-4630
- 電話で取り急ぎ物件情報を聞く

- 物件コード:A101110
- 物件コードを電話でお伝えください
類似物件のご紹介
「大阪平和」とエリア、賃料、広さが類似した物件をご紹介しております。
入商八木
- 大阪府大阪市中央区北浜2丁目3番9号
- 121.27坪(400.89m²)
- @12,001円/坪
~@15,000円/坪 -
地下鉄堺筋線 北浜駅 徒歩1分
京阪線(本線・中之島線) 北浜駅 徒歩1分
京阪淀屋橋
- 大阪府大阪市中央区北浜3丁目2番25号
- 85.63坪(283.07m²)
- @12,001円/坪
~@15,000円/坪 -
地下鉄御堂筋線 淀屋橋駅 徒歩1分
京阪線(本線・中之島線) 淀屋橋駅 徒歩1分
南星本館
- 大阪府大阪市中央区淡路町4丁目4番13号
- 101.25坪(334.71m²)
- @12,001円/坪
~@15,000円/坪 -
地下鉄御堂筋線 本町駅 徒歩4分
地下鉄御堂筋線 淀屋橋駅 徒歩5分
平野町中央
- 大阪府大阪市中央区平野町3丁目2番13号
- 118.18坪(390.68m²)
- @12,001円/坪
~@15,000円/坪 -
地下鉄御堂筋線 淀屋橋駅 徒歩4分
地下鉄堺筋線 北浜駅 徒歩6分
DPスクエア堺筋本町(旧堺筋サテライトビル)
- 大阪府大阪市中央区淡路町1丁目6番9番
- 87.66坪(289.79m²)
- @12,001円/坪
~@15,000円/坪 -
地下鉄堺筋線 堺筋本町駅 徒歩4分
地下鉄堺筋線 北浜駅 徒歩4分






