御堂筋MTR/12階 84.79坪 物件コード:A107315
- 電話で取り急ぎ物件情報を聞く
- 0120-366-200
- 物件コードを電話でお伝えください
物件コード:A107315


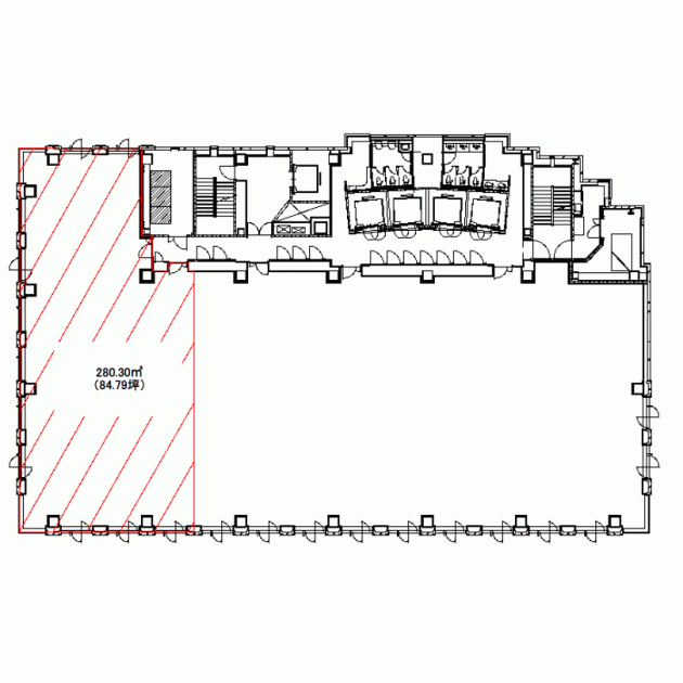
間取り図
おすすめポイント

- 大阪のシンボルストリート「御堂筋」沿いに面した間口の広いインテリジェントビル。オフィスの基準階床面積は約250坪、最小で約40分坪の広さでの分割可能で、分割した場合でも御堂筋に面した区画を確保できます。1階にはおしゃれなカフェや地下にも飲食店が入っておりランチに困りません。
ストリートビューを表示 ▼
- この物件の賃料の価格帯(共益費込)
- 相談
御堂筋MTRのその他の募集階
賃料はこの物件の価格帯を表示しています。詳しい情報は電話・メールでお問い合わせください!
物件概要
| 物件名 | 御堂筋MTR | ||
|---|---|---|---|
| 住所 | 大阪府大阪市中央区淡路町3丁目6番3号
淀屋橋・北浜・本町・堺筋本町でよく検索されるその他の物件 |
||
| 構造 (規模) | 鉄骨・鉄骨鉄筋コンクリート造地上13階地下2階建 | ||
| 坪数 | 84.79坪 | 築年月 | 1999年3月1日 |
| 階数 | 12階 | 空調タイプ | 個別 |
| 保証金 | - | ||
| 敷金 | 相談 | 礼金 | - |
| 沿線・最寄駅 |
地下鉄御堂筋線 本町駅 徒歩3分 (本町駅の賃貸事務所) 地下鉄御堂筋線 淀屋橋駅 徒歩4分 (淀屋橋駅の賃貸事務所) 地下鉄中央線 本町駅 徒歩5分 (本町駅の賃貸事務所) |
||
| 設備詳細 |
|
||
| EV基数 | 4基 | 人荷EV基数 | 1基 |
| こだわり条件 |
|
||
| 備考 | ・大通り沿い・角ビル ・新耐震基準適合 ・エレベーター5基 ・天井高2.7m・駐輪場有り |
||
| アクセス | 新大阪駅まで電車13分 大阪駅梅田駅まで電車7分 関西空港まで電車53分、車51分 伊丹空港まで車25分 高速入口:環状線堂島・信濃橋・阿波座 |
||
この物件の募集フロア
- この物件へのお問い合わせはこちら


〒541-0048
大阪市中央区瓦町3丁目4番3号
瓦町公洋ビル6階
TEL:06-6231-4600
FAX:06-6231-4630
- 電話で取り急ぎ物件情報を聞く

- 物件コード:A107315
- 物件コードを電話でお伝えください
類似物件のご紹介
「御堂筋MTR」とエリア、賃料、広さが類似した物件をご紹介しております。
ハニー
- 大阪府大阪市中央区博労町4丁目6番10号
- 97.93坪(323.74m²)
- @8,001円/坪
~@12,000円/坪 -
地下鉄御堂筋線 心斎橋駅 徒歩4分
地下鉄長堀鶴見緑地線 心斎橋駅 徒歩4分






