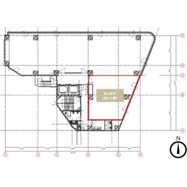
リバーポイント北浜(旧リーガル北浜ビル)/5階 20.12坪 物件コード:A101109
- 電話で取り急ぎ物件情報を聞く
- 0120-366-200
- 物件コードを電話でお伝えください
物件コード:A101109


間取り図
おすすめポイント

- リバーポイント北浜ビルは北浜駅徒歩1分のビルです。入居テナントは優良企業様が多く、立地も土佐堀通り沿いので視認性が高いです。共用部がリニューアル済みで綺麗になっており、角地に建つビルのためどの部屋も明るい造りになっております。基準階面積約83坪で、最小20坪から3分割対応可能です。
ストリートビューを表示 ▼
- この物件の賃料の価格帯(共益費込)
- @12,001円/坪~@15,000円/坪
リバーポイント北浜(旧リーガル北浜ビル)のその他の募集階
賃料はこの物件の価格帯を表示しています。詳しい情報は電話・メールでお問い合わせください!
物件概要
| 物件名 | リバーポイント北浜(旧リーガル北浜ビル) | ||
|---|---|---|---|
| 住所 | 大阪府大阪市中央区北浜1丁目3番14号
淀屋橋・北浜でよく検索されるその他の物件 |
||
| 構造 (規模) | 鉄骨・鉄筋コンクリート造地上10階建 | ||
| 坪数 | 20.12坪 | 築年月 | 1990年3月31日 |
| 階数 | 5階 | 空調タイプ | 個別 |
| 保証金 | - | ||
| 敷金 | 賃料の12カ月分 | 礼金 | - |
| 沿線・最寄駅 |
地下鉄堺筋線 北浜駅 徒歩1分 (北浜駅の賃貸事務所) 京阪線(本線・中之島線) 北浜駅 徒歩1分 (北浜駅の賃貸事務所) 地下鉄御堂筋線 淀屋橋駅 徒歩8分 (淀屋橋駅の賃貸事務所) |
||
| 設備詳細 |
|
||
| EV基数 | 2基 | 人荷EV基数 | - |
| こだわり条件 |
|
||
| 備考 | ・駅近・大通り沿い ・新耐震基準適合・角ビル ・高速出入口近く |
||
| アクセス | 新大阪駅まで電車12分 大阪駅梅田駅まで電車7分 関西空港まで電車53分、車47分 伊丹空港まで車25分 高速入口:環状線高麗橋入口 |
||
この物件の募集フロア
リバーポイント北浜(旧リーガル北浜ビル)
- この物件へのお問い合わせはこちら


〒541-0048
大阪市中央区瓦町3丁目4番3号
瓦町公洋ビル6階
TEL:06-6231-4600
FAX:06-6231-4630
- 電話で取り急ぎ物件情報を聞く

- 物件コード:A101109
- 物件コードを電話でお伝えください
類似物件のご紹介
「リバーポイント北浜(旧リーガル北浜ビル)」とエリア、賃料、広さが類似した物件をご紹介しております。
日本文化会館
- 大阪府大阪市中央区北浜2丁目1番23号
- 23.18坪(76.63m²)
- @12,001円/坪
~@15,000円/坪 -
地下鉄堺筋線 北浜駅 徒歩1分
京阪線(本線・中之島線) 北浜駅 徒歩1分
BRAVI北浜
- 大阪府大阪市中央区平野町1丁目7番3号
- 16.74坪(55.34m²)
- @12,001円/坪
~@15,000円/坪 -
地下鉄堺筋線 北浜駅 徒歩2分
京阪線(本線・中之島線) 北浜駅 徒歩4分
グロース北浜ビルディング(旧今川)
- 大阪府大阪市中央区今橋2丁目2番17号
- 20.45坪(67.60m²)
- @12,001円/坪
~@15,000円/坪 -
地下鉄堺筋線 北浜駅 徒歩2分
京阪線(本線・中之島線) 北浜駅 徒歩2分
瓦町ダイワ(旧:丸水)
- 大阪府大阪市中央区瓦町2丁目1番14号
- 19.05坪(62.98m²)
- @12,001円/坪
~@15,000円/坪 -
地下鉄堺筋線 堺筋本町駅 徒歩3分
地下鉄中央線 堺筋本町駅 徒歩5分
平野町八千代
- 大阪府大阪市中央区平野町1丁目8番13号
- 24.05坪(79.50m²)
- @12,001円/坪
~@15,000円/坪 -
地下鉄堺筋線 北浜駅 徒歩2分
京阪線(本線・中之島線) 北浜駅 徒歩4分






