淀屋橋PREX/12階 50.4坪 物件コード:A106211
- 電話で取り急ぎ物件情報を聞く
- 0120-366-200
- 物件コードを電話でお伝えください
物件コード:A106211


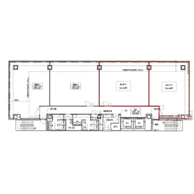
間取り図
おすすめポイント

- 地下鉄堺筋線『北浜』駅から徒歩4分、地下鉄御堂筋線『淀屋橋』駅から徒歩6分程に位置するビル。京阪線『北浜』駅からも徒歩6分程と複数路線利用可能です。ワンフロアで120坪程あり、階によって25坪程に分割されています。
ストリートビューを表示 ▼
- この物件の賃料の価格帯(共益費込)
- この部屋は成約済みです
淀屋橋PREXのその他の募集階
賃料はこの物件の価格帯を表示しています。詳しい情報は電話・メールでお問い合わせください!
物件概要
| 物件名 | 淀屋橋PREX | ||
|---|---|---|---|
| 住所 | 大阪府大阪市中央区平野町2丁目4番9号 | ||
| 構造 (規模) | 鉄骨造地上12階建 | ||
| 坪数 | 50.4坪 | 築年月 | 2021年9月 |
| 階数 | 12階 | 空調タイプ | 個別 |
| 保証金 | - | ||
| 敷金 | - | 礼金 | - |
| 沿線・最寄駅 |
地下鉄堺筋線 北浜駅 徒歩4分 (北浜駅の賃貸事務所) 地下鉄御堂筋線 淀屋橋駅 徒歩6分 (淀屋橋駅の賃貸事務所) 京阪線(本線・中之島線) 北浜駅 徒歩6分 (北浜駅の賃貸事務所) |
||
| 設備詳細 |
|
||
| EV基数 | 2基 | 人荷EV基数 | - |
| こだわり条件 |
|
||
| 備考 | ・新耐震基準適合 ・LED照明 ・天井高2,700mm ・駐輪場(自動二輪2台) ・リフレッシュスペース(IHコンロ付きパントリー) ・屋上庭園 |
||
| アクセス | 新大阪駅まで電車18分 大阪駅梅田駅まで電車13分 関西空港まで電車59分、車42分 伊丹空港まで車20分 高速入口:阪神高速環状線高麗橋入口 |
||
この物件の募集フロア
淀屋橋PREX
- この物件へのお問い合わせはこちら


〒541-0048
大阪市中央区瓦町3丁目4番3号
瓦町公洋ビル6階
TEL:06-6231-4600
FAX:06-6231-4630
- 電話で取り急ぎ物件情報を聞く

- 物件コード:A106211
- 物件コードを電話でお伝えください
類似物件のご紹介
「淀屋橋PREX」とエリア、賃料、広さが類似した物件をご紹介しております。
assess大手通
- 大阪府大阪市中央区大手通2丁目4番8号
- 56.47坪(186.68m²)
- @12,001円/坪
~@15,000円/坪 -
地下鉄谷町線 谷町四丁目駅 徒歩9分
地下鉄堺筋線 堺筋本町駅 徒歩10分
大阪朝日生命館
- 大阪府大阪市中央区高麗橋4丁目2番16号
- 46坪(152.07m²)
- @12,001円/坪
~@15,000円/坪 -
地下鉄御堂筋線 淀屋橋駅 徒歩1分
京阪線(本線・中之島線) 淀屋橋駅 徒歩2分
イシモト
- 大阪府大阪市中央区平野町2丁目2番8号
- 42.04坪(138.98m²)
- @8,001円/坪
~@12,000円/坪 -
地下鉄堺筋線 北浜駅 徒歩3分
京阪線(本線・中之島線) 北浜駅 徒歩5分
グロース北浜ビルディング(旧今川)
- 大阪府大阪市中央区今橋2丁目2番17号
- 40.36坪(133.42m²)
- @12,001円/坪
~@15,000円/坪 -
地下鉄堺筋線 北浜駅 徒歩2分
京阪線(本線・中之島線) 北浜駅 徒歩2分
京阪神淀屋橋
- 大阪府大阪市中央区今橋4丁目4番7号
- 46.79坪(154.68m²)
- @20,001円/坪
~@30,000円/坪 -
地下鉄御堂筋線 淀屋橋駅 徒歩2分
地下鉄四つ橋線 肥後橋駅 徒歩3分






