天満橋永/3階 20.5坪 物件コード:C112209
- 電話で取り急ぎ物件情報を聞く
- 0120-366-200
- 物件コードを電話でお伝えください
物件コード:C112209
ストリートビューを表示 ▼
- この物件の賃料の価格帯(共益費込)
- @8,001円/坪~@12,000円/坪
天満橋永のその他の募集階
賃料はこの物件の価格帯を表示しています。詳しい情報は電話・メールでお問い合わせください!
物件概要
| 物件名 | 天満橋永 | ||
|---|---|---|---|
| 住所 | 大阪府大阪市北区天満2丁目1番27号
南森町でよく検索されるその他の物件 |
||
| 構造 (規模) | 地上6階 | ||
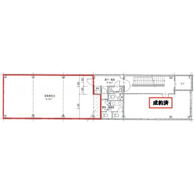
| 坪数 | 20.5坪 | 築年月 | 1974年4月 |
| 階数 | 3階 | 空調タイプ | 個別 |
| 保証金 | - | ||
| 敷金 | 賃料の3カ月分 | 礼金 | - |
| 沿線・最寄駅 |
京阪線(本線・中之島線) 天満橋駅 徒歩4分 (天満橋駅の賃貸事務所) 地下鉄谷町線 天満橋駅 徒歩4分 (天満橋駅の賃貸事務所) JR東西線 大阪天満宮駅 徒歩10分 (大阪天満宮駅の賃貸事務所) |
||
| 設備詳細 |
|
||
| EV基数 | 1基 | 人荷EV基数 | - |
| こだわり条件 |
|
||
| 備考 | |||
| アクセス | 新大阪駅まで電車21分 大阪駅梅田駅まで電車15分 関西空港まで電車59分、車45分 伊丹空港まで車20分 高速入口:環状線南森町・高麗橋入口 |
||
この物件の募集フロア
天満橋永
- この物件へのお問い合わせはこちら


〒541-0048
大阪市中央区瓦町3丁目4番3号
瓦町公洋ビル6階
TEL:06-6231-4600
FAX:06-6231-4630
- 電話で取り急ぎ物件情報を聞く

- 物件コード:C112209
- 物件コードを電話でお伝えください
類似物件のご紹介
「天満橋永」とエリア、賃料、広さが類似した物件をご紹介しております。
サンプラザ南森町(旧天二)
- 大阪府大阪市北区天神橋2丁目北1-14
- 20.07坪(66.35m²)
- @8,001円/坪
~@12,000円/坪 -
地下鉄堺筋線 南森町駅 徒歩1分
地下鉄谷町線 南森町駅 徒歩1分
西天満第11松屋
- 大阪府大阪市北区西天満1丁目10番8号
- 19.69坪(65.09m²)
- @8,001円/坪
~@12,000円/坪 -
京阪線(本線・中之島線) なにわ橋駅 徒歩4分
地下鉄谷町線 南森町駅 徒歩7分
西天満第11松屋
- 大阪府大阪市北区西天満1丁目10番8号
- 19.69坪(65.09m²)
- @8,001円/坪
~@12,000円/坪 -
京阪線(本線・中之島線) なにわ橋駅 徒歩4分
地下鉄谷町線 南森町駅 徒歩7分
西天満(旧西天満ファイブ)
- 大阪府大阪市北区西天満5丁目16番3号
- 19.16坪(63.34m²)
- @8,001円/坪
~@12,000円/坪 -
地下鉄谷町線 南森町駅 徒歩3分
地下鉄堺筋線 南森町駅 徒歩3分








