ラ・リブロ東天満/2階 16.66坪 物件コード:C111103
- 電話で取り急ぎ物件情報を聞く
- 0120-366-200
- 物件コードを電話でお伝えください
物件コード:C111103
ストリートビューを表示 ▼
- この物件の賃料の価格帯(共益費込)
- @3,000円/坪~@8,000円/坪
ラ・リブロ東天満のその他の募集階
|
|
賃料はこの物件の価格帯を表示しています。詳しい情報は電話・メールでお問い合わせください!
物件概要
| 物件名 | ラ・リブロ東天満 | ||
|---|---|---|---|
| 住所 | 大阪府大阪市北区東天満1丁目2番15号
南森町でよく検索されるその他の物件 |
||
| 構造 (規模) | 鉄骨造り地上10階地下1階建 | ||
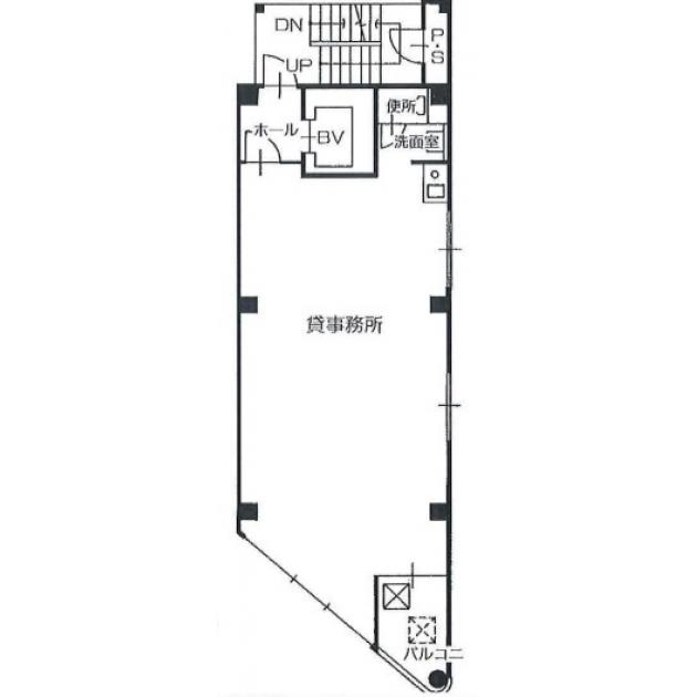
| 坪数 | 16.66坪 | 築年月 | 1993年 |
| 階数 | 2階 | 空調タイプ | 個別 |
| 保証金 | - | ||
| 敷金 | - | 礼金 | 賃料の3カ月分 |
| 沿線・最寄駅 |
JR東西線 大阪天満宮駅 徒歩4分 (大阪天満宮駅の賃貸事務所) 地下鉄谷町線 南森町駅 徒歩6分 (南森町駅の賃貸事務所) 地下鉄堺筋線 南森町駅 徒歩6分 (南森町駅の賃貸事務所) |
||
| 設備詳細 |
|
||
| EV基数 | 1基 | 人荷EV基数 | - |
| こだわり条件 |
|
||
| 備考 | |||
| アクセス | 新大阪駅まで電車22分 大阪駅梅田駅まで電車16分 関西空港まで電車57分、車45分 伊丹空港まで車20分 高速入口:環状線南森町・扇町入口 |
||
この物件の募集フロア
ラ・リブロ東天満
- この物件へのお問い合わせはこちら


〒541-0048
大阪市中央区瓦町3丁目4番3号
瓦町公洋ビル6階
TEL:06-6231-4600
FAX:06-6231-4630
- 電話で取り急ぎ物件情報を聞く

- 物件コード:C111103
- 物件コードを電話でお伝えください
類似物件のご紹介
「ラ・リブロ東天満」とエリア、賃料、広さが類似した物件をご紹介しております。
TATSUMI天神橋(旧:新末広)
- 大阪府大阪市北区天神橋3丁目8番9号
- 17.04坪(56.33m²)
- @3,000円/坪
~@8,000円/坪 -
地下鉄堺筋線 扇町駅 徒歩1分
地下鉄谷町線 南森町駅 徒歩3分
昭栄ビル南館
- 大阪府大阪市北区西天満4丁目1番11号
- 14坪(46.28m²)
- @3,000円/坪
~@8,000円/坪 -
京阪線(本線・中之島線) なにわ橋駅 徒歩6分
地下鉄谷町線 南森町駅 徒歩7分








