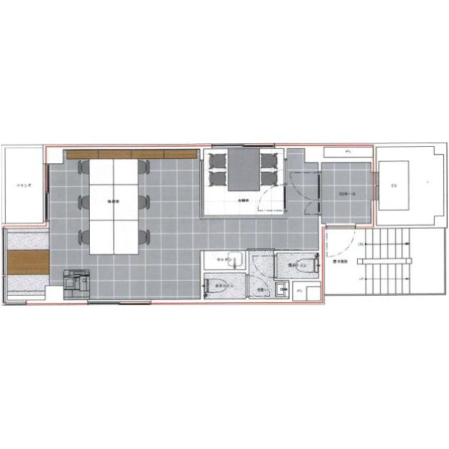
M.BALANCE⁺ YODOYABASHI(旧:おおきに平野町)/3階 【セットアップオフィス】12.63坪 物件コード:A106421
- 電話で取り急ぎ物件情報を聞く
- 0120-366-200
- 物件コードを電話でお伝えください
物件コード:A106421
ストリートビューを表示 ▼
- この物件の賃料の価格帯(共益費込)
- この部屋は成約済みです
M.BALANCE⁺ YODOYABASHI(旧:おおきに平野町)のその他の募集階
|
|
賃料はこの物件の価格帯を表示しています。詳しい情報は電話・メールでお問い合わせください!
物件概要
| 物件名 | M.BALANCE⁺ YODOYABASHI(旧:おおきに平野町) | ||
|---|---|---|---|
| 住所 | 大阪府大阪市中央区平野町4丁目5番7号 | ||
| 構造 (規模) | 鉄骨造地上8階 | ||
| 坪数 | 12.63坪 | 築年月 | 2001年11月1日 |
| 階数 | 3階 | 空調タイプ | 個別 |
| 保証金 | - | ||
| 敷金 | - | 礼金 | - |
| 沿線・最寄駅 |
地下鉄御堂筋線 淀屋橋駅 徒歩5分 (淀屋橋駅の賃貸事務所) 地下鉄四つ橋線 肥後橋駅 徒歩5分 (肥後橋駅の賃貸事務所) 地下鉄御堂筋線 本町駅 徒歩6分 (本町駅の賃貸事務所) |
||
| 設備詳細 |
|
||
| EV基数 | 1基 | 人荷EV基数 | - |
| こだわり条件 |
|
||
| 備考 | |||
| アクセス | 新大阪駅まで電車14分 大阪駅梅田駅まで電車8分 関西空港まで電車55分、車50分 伊丹空港まで車22分 高速入口:環状線堂島・信濃橋入口 |
||
この物件の募集フロア
M.BALANCE⁺ YODOYABASHI(旧:おおきに平野町)
- この物件へのお問い合わせはこちら


〒541-0048
大阪市中央区瓦町3丁目4番3号
瓦町公洋ビル6階
TEL:06-6231-4600
FAX:06-6231-4630
- 電話で取り急ぎ物件情報を聞く

- 物件コード:A106421
- 物件コードを電話でお伝えください
類似物件のご紹介
「M.BALANCE⁺ YODOYABASHI(旧:おおきに平野町)」とエリア、賃料、広さが類似した物件をご紹介しております。
GAZELLE RIO淀屋橋
- 大阪府大阪市中央区平野町4丁目7番6号
- 10.87坪(35.93m²)
- @20,001円/坪
~@30,000円/坪 -
地下鉄御堂筋線 淀屋橋駅 徒歩6分
地下鉄御堂筋線 本町駅 徒歩6分








