四ツ橋セントラル/3階 81.7坪 物件コード:B203104
- 電話で取り急ぎ物件情報を聞く
- 0120-366-200
- 物件コードを電話でお伝えください
物件コード:B203104


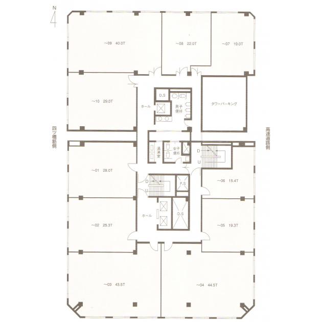
間取り図
おすすめポイント

- 四ツ橋セントラルビルは、大通り(四ツ橋筋)に面した大型のオフィスビルです。エレベーターは3基設置、貸会議室も完備、地下1階には喫煙室を設けており、オフィスの付帯設備が整っております。1階にはコンビニや大手飲食店チェーンが入居中です。
ストリートビューを表示 ▼
- この物件の賃料の価格帯(共益費込)
- この部屋は成約済みです
四ツ橋セントラルのその他の募集階
賃料はこの物件の価格帯を表示しています。詳しい情報は電話・メールでお問い合わせください!
物件概要
| 物件名 | 四ツ橋セントラル | ||
|---|---|---|---|
| 住所 | 大阪府大阪市西区新町1丁目3番12号 | ||
| 構造 (規模) | 鉄骨鉄筋コンクリート造地上9階地下1階建 | ||
| 坪数 | 81.7坪 | 築年月 | 1977年3月1日 |
| 階数 | 3階 | 空調タイプ | 個別 |
| 保証金 | - | ||
| 敷金 | - | 礼金 | - |
| 沿線・最寄駅 |
地下鉄四つ橋線 四ツ橋駅 徒歩2分 (四ツ橋駅の賃貸事務所) 地下鉄長堀鶴見緑地線 心斎橋駅 徒歩4分 (心斎橋駅の賃貸事務所) 地下鉄御堂筋線 心斎橋駅 徒歩4分 (心斎橋駅の賃貸事務所) |
||
| 設備詳細 |
|
||
| EV基数 | 3基 | 人荷EV基数 | - |
| こだわり条件 |
|
||
| 備考 | |||
| アクセス | 新大阪駅まで電車16分 大阪駅梅田駅まで電車10分 関西空港まで電車50分、車40分 伊丹空港まで車20分 高速入口:環状線四ツ橋・阿波座・信濃橋入口 |
||
- この物件へのお問い合わせはこちら


〒541-0048
大阪市中央区瓦町3丁目4番3号
瓦町公洋ビル6階
TEL:06-6231-4600
FAX:06-6231-4630
- 電話で取り急ぎ物件情報を聞く

- 物件コード:B203104
- 物件コードを電話でお伝えください
類似物件のご紹介
「四ツ橋セントラル」とエリア、賃料、広さが類似した物件をご紹介しております。
NORD+S南船場(ノードス)
- 大阪府大阪市中央区南船場3丁目10番5号
- 89.84坪(296.99m²)
- @12,001円/坪
~@15,000円/坪 -
地下鉄御堂筋線 心斎橋駅 徒歩3分
地下鉄長堀鶴見緑地線 心斎橋駅 徒歩3分
CT四ツ橋(旧FUKU BLD.新町)
- 大阪府大阪市西区新町1丁目7番20号
- 66.68坪(220.43m²)
- @12,001円/坪
~@15,000円/坪 -
地下鉄四つ橋線 四ツ橋駅 徒歩2分
地下鉄長堀鶴見緑地線 西大橋駅 徒歩4分
HSK南船場
- 大阪府大阪市中央区南船場2丁目3番23号
- 70.45坪(232.89m²)
- @12,001円/坪
~@15,000円/坪 -
地下鉄堺筋線 長堀橋駅 徒歩3分
地下鉄長堀鶴見緑地線 長堀橋駅 徒歩3分
なにわ筋SIA
- 大阪府大阪市西区新町2丁目4番2号
- 77.61坪(256.56m²)
- @12,001円/坪
~@15,000円/坪 -
地下鉄長堀鶴見緑地線 西大橋駅 徒歩2分
地下鉄千日前線 西長堀駅 徒歩7分
長堀プラザ(旧第百生命大阪)
- 大阪府大阪市中央区南船場2丁目4番8号
- 84.87坪(280.56m²)
- @12,001円/坪
~@15,000円/坪 -
地下鉄堺筋線 長堀橋駅 徒歩1分
地下鉄長堀鶴見緑地線 長堀橋駅 徒歩1分






