立売堀スクエア(旧リーガル立売堀)/9階 48.4坪 物件コード:B202115
- 電話で取り急ぎ物件情報を聞く
- 0120-366-200
- 物件コードを電話でお伝えください
物件コード:B202115


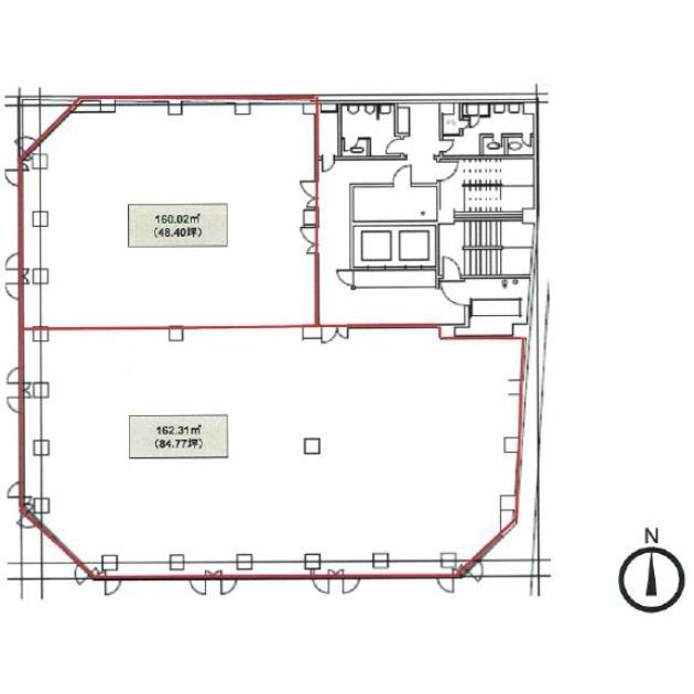
間取り図
おすすめポイント

- 四ツ橋筋から西へ1本入った角地に建つビルです。ビルの南側と西側が道路に面している為、採光も見込めます。また、エントランスや共用部はモダンな内装になっています。1階エレベーター前には自動販売機もあるので便利です。
ストリートビューを表示 ▼
- この物件の賃料の価格帯(共益費込)
- 相談
立売堀スクエア(旧リーガル立売堀)のその他の募集階
賃料はこの物件の価格帯を表示しています。詳しい情報は電話・メールでお問い合わせください!
物件概要
| 物件名 | 立売堀スクエア(旧リーガル立売堀) | ||
|---|---|---|---|
| 住所 | 大阪府大阪市西区立売堀1丁目4番12号
肥後橋・本町でよく検索されるその他の物件 |
||
| 構造 (規模) | 鉄骨鉄筋コンクリート造地上9階地下1階建 | ||
| 坪数 | 48.4坪 | 築年月 | 1987年6月1日 |
| 階数 | 9階 | 空調タイプ | 集中+個別 |
| 保証金 | 相談 | ||
| 敷金 | 賃料の10カ月分 | 礼金 | - |
| 沿線・最寄駅 |
地下鉄四つ橋線 本町駅 徒歩4分 (本町駅の賃貸事務所) 地下鉄中央線 本町駅 徒歩6分 (本町駅の賃貸事務所) 地下鉄御堂筋線 本町駅 徒歩7分 (本町駅の賃貸事務所) |
||
| 設備詳細 |
|
||
| EV基数 | 2基 | 人荷EV基数 | - |
| こだわり条件 |
|
||
| 備考 | ・角ビル ・新耐震基準適合 ・2019年エントランス及び共用部リニューアル ・自動販売機 |
||
| アクセス | 新大阪駅まで電車17分 大阪駅梅田駅まで電車11分 関西空港まで電車56分、車45分 伊丹空港まで車20分 高速入口:環状線信濃橋・阿波座入口 |
||
この物件の募集フロア
立売堀スクエア(旧リーガル立売堀)
- この物件へのお問い合わせはこちら


〒541-0048
大阪市中央区瓦町3丁目4番3号
瓦町公洋ビル6階
TEL:06-6231-4600
FAX:06-6231-4630
- 電話で取り急ぎ物件情報を聞く

- 物件コード:B202115
- 物件コードを電話でお伝えください
類似物件のご紹介
「立売堀スクエア(旧リーガル立売堀)」とエリア、賃料、広さが類似した物件をご紹介しております。
肥後橋ユニオン
- 大阪府大阪市西区江戸堀1丁目9番6号
- 43.27坪(143.04m²)
- @12,001円/坪
~@15,000円/坪 -
地下鉄四つ橋線 肥後橋駅 徒歩1分
地下鉄御堂筋線 淀屋橋駅 徒歩6分
RE-021
- 大阪府大阪市西区京町堀1丁目16番8号
- 44.83坪(148.20m²)
- @12,001円/坪
~@15,000円/坪 -
地下鉄四つ橋線 肥後橋駅 徒歩6分
地下鉄中央線 本町駅 徒歩11分
CAMCO肥後橋
- 大阪府大阪市西区江戸堀1丁目23番37号
- 55.62坪(183.87m²)
- @15,001円/坪
~@20,000円/坪 -
地下鉄四つ橋線 肥後橋駅 徒歩4分
京阪線(本線・中之島線) 渡辺橋駅 徒歩8分
仮)阿波座一丁目貸店舗
- 大阪府大阪市西区阿波座1丁目3番19号
- 44.17坪(146.02m²)
- @12,001円/坪
~@15,000円/坪 -
地下鉄四つ橋線 本町駅 徒歩1分
地下鉄中央線 本町駅 徒歩2分






