VA第一/5階 38.01坪 物件コード:C416207
- 電話で取り急ぎ物件情報を聞く
- 0120-366-200
- 物件コードを電話でお伝えください
物件コード:C416207
ストリートビューを表示 ▼
- この物件の賃料の価格帯(共益費込)
- @8,001円/坪~@12,000円/坪
VA第一のその他の募集階
|
|
賃料はこの物件の価格帯を表示しています。詳しい情報は電話・メールでお問い合わせください!
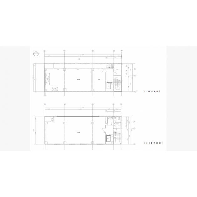
物件概要
| 物件名 | VA第一 | ||
|---|---|---|---|
| 住所 | 大阪府大阪市北区本庄西2丁目12番16号
梅田でよく検索されるその他の物件 |
||
| 構造 (規模) | 鉄骨造陸屋根6階建 | ||
| 坪数 | 38.01坪 | 築年月 | 1992年4月1日 |
| 階数 | 5階 | 空調タイプ | 個別 |
| 保証金 | - | ||
| 敷金 | 相談 | 礼金 | 相談 |
| 沿線・最寄駅 |
地下鉄御堂筋線 中津駅 徒歩9分 (中津駅の賃貸事務所) 地下鉄谷町線 中崎町駅 徒歩10分 (中崎町駅の賃貸事務所) 地下鉄谷町線 天神橋筋六丁目駅 徒歩12分 (天神橋筋六丁目駅の賃貸事務所) |
||
| 設備詳細 |
|
||
| EV基数 | 1基 | 人荷EV基数 | - |
| こだわり条件 |
|
||
| 備考 | |||
| アクセス | 新大阪駅まで電車16分 大阪駅梅田駅まで電車9分 関西空港まで電車80分、車55分 伊丹空港まで車25分 |
||
この物件の募集フロア
VA第一
- この物件へのお問い合わせはこちら


〒541-0048
大阪市中央区瓦町3丁目4番3号
瓦町公洋ビル6階
TEL:06-6231-4600
FAX:06-6231-4630
- 電話で取り急ぎ物件情報を聞く

- 物件コード:C416207
- 物件コードを電話でお伝えください
類似物件のご紹介
「VA第一」とエリア、賃料、広さが類似した物件をご紹介しております。
西天満大治
- 大阪府大阪市北区西天満2丁目8番5号
- 32.04坪(105.92m²)
- @8,001円/坪
~@12,000円/坪 -
京阪線(本線・中之島線) 大江橋駅 徒歩4分
地下鉄御堂筋線 淀屋橋駅 徒歩6分








