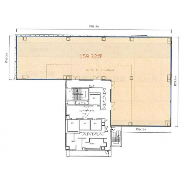
UMEDA EAST CROSS/5階 159.33坪 物件コード:C208041
- 電話で取り急ぎ物件情報を聞く
- 0120-366-200
- 物件コードを電話でお伝えください
物件コード:C208041


間取り図
おすすめポイント

- 2025年9月竣工予定の新築ビル。
基準階約160坪で分割区画も最小約23坪まで対応可能の為、幅広いご要望に対応できます。
新御堂筋に面しており各線【梅田駅】【大阪駅】からのアクセスも良好。
充実した設備をはじめ、環境対策や新耐震基準の1.25倍相当の耐震基準の為
快適なオフィスライフが提供可能です。
ストリートビューを表示 ▼
- この物件の賃料の価格帯(共益費込)
- 相談
UMEDA EAST CROSSのその他の募集階
|
続きを表示 ▼ |
賃料はこの物件の価格帯を表示しています。詳しい情報は電話・メールでお問い合わせください!
物件概要
| 物件名 | UMEDA EAST CROSS | ||
|---|---|---|---|
| 住所 | 大阪府大阪市北区堂山町7番9号
梅田でよく検索されるその他の物件 |
||
| 構造 (規模) | 鉄骨造地上14階塔屋1階 | ||
| 坪数 | 159.33坪 | 築年月 | 2025年9月 |
| 階数 | 5階 | 空調タイプ | 個別 |
| 保証金 | - | ||
| 敷金 | 賃料の12カ月分 | 礼金 | - |
| 沿線・最寄駅 |
地下鉄御堂筋線 梅田駅 徒歩5分 (梅田駅の賃貸事務所) 地下鉄谷町線 東梅田駅 徒歩5分 (東梅田駅の賃貸事務所) JR東海道本線 大阪駅 徒歩8分 (大阪駅の賃貸事務所) |
||
| 設備詳細 |
|
||
| EV基数 | 3基 | 人荷EV基数 | 1基 |
| こだわり条件 |
|
||
| 備考 | zeb oriented取得予定(省エネ設備を設置した建築物) CASBEE大阪みらい ランクA取得(大阪市建築物総合環境評価制度) 新耐震基準の1.25倍相当の耐震基準 コンセント容量60VA/㎡ 天井高2.8m(OAフロアより) OA(100㎜) 床過重500㎏/㎡ テナント専用WEBアプリ導入予定 駐車場(平面2台・機械式20台) 駐輪場5台(ミニバイク含む) |
||
| アクセス | 新大阪駅まで電車10分 大阪駅梅田駅まで電車1分 関西空港まで電車60分、車48分 伊丹空港まで車22分 高速入口:阪神高速環状線南森町・扇町入口 |
||
この物件の募集フロア
- この物件へのお問い合わせはこちら


〒541-0048
大阪市中央区瓦町3丁目4番3号
瓦町公洋ビル6階
TEL:06-6231-4600
FAX:06-6231-4630
- 電話で取り急ぎ物件情報を聞く

- 物件コード:C208041
- 物件コードを電話でお伝えください
類似物件のご紹介
「UMEDA EAST CROSS」とエリア、賃料、広さが類似した物件をご紹介しております。
ピアスタワー
- 大阪府大阪市北区豊崎3丁目19番3号
- 155.98坪(515.64m²)
- @20,001円/坪
~@30,000円/坪 -
地下鉄御堂筋線 中津駅 徒歩2分
地下鉄御堂筋線 梅田駅 徒歩10分
ピアスタワー
- 大阪府大阪市北区豊崎3丁目19番3号
- 155.98坪(515.64m²)
- @20,001円/坪
~@30,000円/坪 -
地下鉄御堂筋線 中津駅 徒歩2分
地下鉄御堂筋線 梅田駅 徒歩10分
梅田スカイビルタワーイースト
- 大阪府大阪市北区大淀中1丁目1番73号
- 144.2坪(476.69m²)
- @20,001円/坪
~@30,000円/坪 -
JR大阪環状線 大阪駅 徒歩6分
地下鉄御堂筋線 梅田駅 徒歩7分






