M-chris/1階 27.9坪 物件コード:A304103
- 電話で取り急ぎ物件情報を聞く
- 0120-366-200
- 物件コードを電話でお伝えください
物件コード:A304103


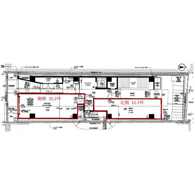
間取り図
おすすめポイント

- 大阪メトロ谷町線「天満橋駅」徒歩1分。2024年3月竣工予定の新築マンション。
大通りから少し中に入った静かな立地です。周辺公園があるためおすすめの環境になります。
ストリートビューを表示 ▼
- この物件の賃料の価格帯(共益費込)
- この部屋は成約済みです
M-chrisのその他の募集階
|
|
賃料はこの物件の価格帯を表示しています。詳しい情報は電話・メールでお問い合わせください!
物件概要
| 物件名 | M-chris | ||
|---|---|---|---|
| 住所 | 大阪府大阪市中央区石町1丁目1番7号 | ||
| 構造 (規模) | 鉄筋コンクリート造地上10階建 | ||
| 坪数 | 27.9坪 | 築年月 | 2024年2月 |
| 階数 | 1階 | 空調タイプ | 個別 |
| 保証金 | - | ||
| 敷金 | - | 礼金 | - |
| 沿線・最寄駅 |
地下鉄谷町線 天満橋駅 徒歩1分 (天満橋駅の賃貸事務所) 京阪線(本線・中之島線) 天満橋駅 徒歩2分 (天満橋駅の賃貸事務所) 地下鉄谷町線 谷町四丁目駅 徒歩9分 (谷町四丁目駅の賃貸事務所) |
||
| 設備詳細 |
|
||
| EV基数 | 1基 | 人荷EV基数 | - |
| こだわり条件 |
|
||
| 備考 | |||
| アクセス | 新大阪駅まで電車17分 大阪駅梅田駅まで電車11分 関西空港まで電車56分、車45分 伊丹空港まで車20分 高速入口:環状線高麗橋・法円坂入口 |
||
この物件の募集フロア
M-chris
- この物件へのお問い合わせはこちら


〒541-0048
大阪市中央区瓦町3丁目4番3号
瓦町公洋ビル6階
TEL:06-6231-4600
FAX:06-6231-4630
- 電話で取り急ぎ物件情報を聞く

- 物件コード:A304103
- 物件コードを電話でお伝えください
類似物件のご紹介
「M-chris」とエリア、賃料、広さが類似した物件をご紹介しております。






