梅田清和/1階 97.7坪 物件コード:C505223
- 電話で取り急ぎ物件情報を聞く
- 0120-366-200
- 物件コードを電話でお伝えください
物件コード:C505223


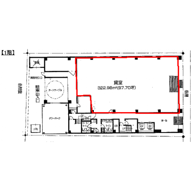
間取り図
おすすめポイント

- JR、地下鉄、阪急の大阪駅・各梅田駅からすぐ、国道176線沿いに面する存在感抜群のオフィスビル。1階は紳士服店が入居中。抜群の立地で来店型店舗のテナントも多数入居中。丁寧なリニューアル工事を行っているので共用部等は築年数を感じさせません。
ストリートビューを表示 ▼
- この物件の賃料の価格帯(共益費込)
- この部屋は成約済みです
梅田清和のその他の募集階
|
|
賃料はこの物件の価格帯を表示しています。詳しい情報は電話・メールでお問い合わせください!
物件概要
| 物件名 | 梅田清和 | ||
|---|---|---|---|
| 住所 | 大阪府大阪市北区芝田2丁目6番30号 | ||
| 構造 (規模) | 鉄骨鉄筋コンクリート造地上8階建 | ||
| 坪数 | 97.7坪 | 築年月 | 1982年2月1日 |
| 階数 | 1階 | 空調タイプ | 個別 |
| 保証金 | - | ||
| 敷金 | - | 礼金 | - |
| 沿線・最寄駅 |
地下鉄御堂筋線 梅田駅 徒歩2分 (梅田駅の賃貸事務所) JR東海道本線 大阪駅 徒歩2分 (大阪駅の賃貸事務所) 地下鉄谷町線 東梅田駅 徒歩3分 (東梅田駅の賃貸事務所) |
||
| 設備詳細 |
|
||
| EV基数 | 2基 | 人荷EV基数 | - |
| こだわり条件 |
|
||
| 備考 | |||
| アクセス | 新大阪駅まで電車6分 大阪駅梅田駅まで電車2分 関西空港まで電車60分、車45分 伊丹空港まで車20分 高速入口:阪神高速環状線梅田入口 |
||
この物件の募集フロア
梅田清和
- この物件へのお問い合わせはこちら


〒541-0048
大阪市中央区瓦町3丁目4番3号
瓦町公洋ビル6階
TEL:06-6231-4600
FAX:06-6231-4630
- 電話で取り急ぎ物件情報を聞く

- 物件コード:C505223
- 物件コードを電話でお伝えください
類似物件のご紹介
「梅田清和」とエリア、賃料、広さが類似した物件をご紹介しております。
コウヅキキャピタルウエスト
- 大阪府大阪市北区曽根崎2丁目6番6号
- 79.35坪(262.31m²)
- @20,001円/坪
~@30,000円/坪 -
地下鉄谷町線 東梅田駅 徒歩2分
JR大阪環状線 大阪駅 徒歩7分
北大阪ビルディング
- 大阪府大阪市北区万歳町3番20号
- 111.46坪(368.46m²)
- @12,001円/坪
~@15,000円/坪 -
地下鉄谷町線 中崎町駅 徒歩1分
地下鉄御堂筋線 梅田駅 徒歩7分






