大同生命江坂/13階 52.5坪 物件コード:I10112310
- 電話で取り急ぎ物件情報を聞く
- 0120-366-200
- 物件コードを電話でお伝えください
物件コード:I10112310
ストリートビューを表示 ▼
- この物件の賃料の価格帯(共益費込)
- この部屋は成約済みです
大同生命江坂のその他の募集階
|
|
賃料はこの物件の価格帯を表示しています。詳しい情報は電話・メールでお問い合わせください!
物件概要
| 物件名 | 大同生命江坂 | ||
|---|---|---|---|
| 住所 | 大阪府吹田市江坂町1丁目23番101号 | ||
| 構造 (規模) | 鉄筋コンクリート造地上15階建 | ||
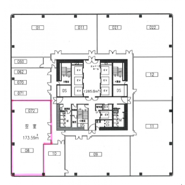
| 坪数 | 52.5坪 | 築年月 | 1972年9月1日 |
| 階数 | 13階 | 空調タイプ | 集中 |
| 保証金 | - | ||
| 敷金 | - | 礼金 | - |
| 沿線・最寄駅 |
地下鉄御堂筋線 江坂駅 徒歩1分 (江坂駅の賃貸事務所) |
||
| 設備詳細 |
|
||
| EV基数 | 6基 | 人荷EV基数 | 1基 |
| こだわり条件 |
|
||
| 備考 | |||
| アクセス | 新大阪駅まで電車8分 大阪駅梅田駅まで電車15分 関西空港まで電車63分、車55分 伊丹空港まで車13分 高速入口:豊中・豊中南入口 |
||
この物件の募集フロア
大同生命江坂
パノラマビュー
- この物件へのお問い合わせはこちら


〒541-0048
大阪市中央区瓦町3丁目4番3号
瓦町公洋ビル6階
TEL:06-6231-4600
FAX:06-6231-4630
- 電話で取り急ぎ物件情報を聞く

- 物件コード:I10112310
- 物件コードを電話でお伝えください
類似物件のご紹介
「大同生命江坂」とエリア、賃料、広さが類似した物件をご紹介しております。









