ニュー備後町/6階 22.32坪 物件コード:A109312
- 電話で取り急ぎ物件情報を聞く
- 0120-366-200
- 物件コードを電話でお伝えください
物件コード:A109312


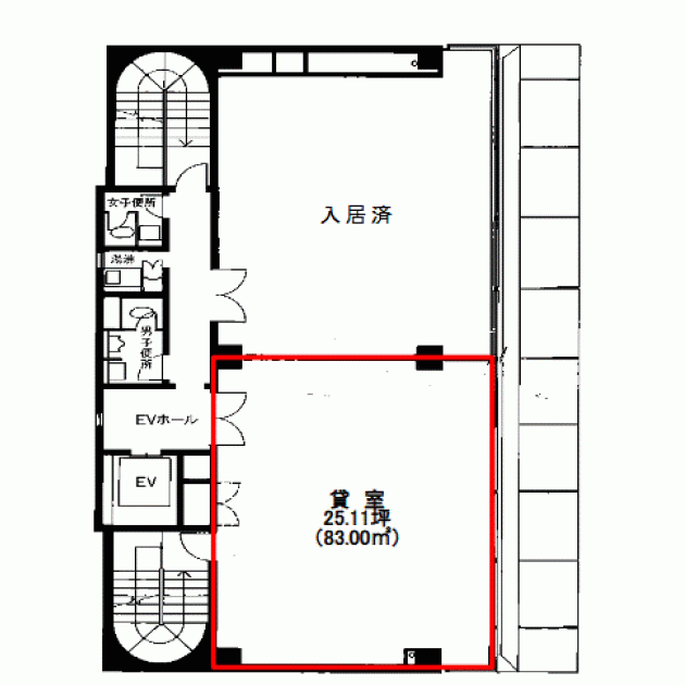
間取り図
おすすめポイント

- サーモンピンクのタイル張りの間口の広いオフィスビルです。ビルの斜向かい側にはホテルヴィアーレ大阪があり、時間貸でハイルーフ車も対応できる駐車場があり便利です。空調入替、トイレ改修工事など、ビルの快適さを保つべく都度改修工事を行っています。周辺にはカラオケビッグエコーや飲食店が多くあり、お昼のランチから夜の飲み会まで近場でお楽しみ頂けます。
ストリートビューを表示 ▼
- この物件の賃料の価格帯(共益費込)
- @8,001円/坪~@12,000円/坪
ニュー備後町のその他の募集階
|
|
賃料はこの物件の価格帯を表示しています。詳しい情報は電話・メールでお問い合わせください!
物件概要
| 物件名 | ニュー備後町 | ||
|---|---|---|---|
| 住所 | 大阪府大阪市中央区備後町3丁目3番15号
本町・堺筋本町でよく検索されるその他の物件 |
||
| 構造 (規模) | 鉄筋コンクリート造地上6階地下1階建 | ||
| 坪数 | 22.32坪 | 築年月 | 1986年10月1日 |
| 階数 | 6階 | 空調タイプ | 個別 |
| 保証金 | - | ||
| 敷金 | 賃料の12カ月分 | 礼金 | - |
| 沿線・最寄駅 |
地下鉄御堂筋線 本町駅 徒歩2分 (本町駅の賃貸事務所) 地下鉄中央線 本町駅 徒歩4分 (本町駅の賃貸事務所) 地下鉄堺筋線 堺筋本町駅 徒歩5分 (堺筋本町駅の賃貸事務所) |
||
| 設備詳細 |
|
||
| EV基数 | 1基 | 人荷EV基数 | - |
| こだわり条件 |
|
||
| 備考 | ・駅近 ・新耐震基準適合 ・喫煙ルーム ・2009年6月トイレリニューアル |
||
| アクセス | 新大阪駅まで電車13分 大阪駅梅田駅まで電車7分 関西空港まで電車52分、車51分 伊丹空港まで車22分 高速入口:環状線信濃橋・阿波座入口 |
||
この物件の募集フロア
ニュー備後町
- この物件へのお問い合わせはこちら


〒541-0048
大阪市中央区瓦町3丁目4番3号
瓦町公洋ビル6階
TEL:06-6231-4600
FAX:06-6231-4630
- 電話で取り急ぎ物件情報を聞く

- 物件コード:A109312
- 物件コードを電話でお伝えください
類似物件のご紹介
「ニュー備後町」とエリア、賃料、広さが類似した物件をご紹介しております。
野上(ホワイトキューブ)
- 大阪府大阪市中央区博労町4丁目5番6号
- 20坪(66.12m²)
- @8,001円/坪
~@12,000円/坪 -
地下鉄御堂筋線 心斎橋駅 徒歩4分
地下鉄長堀鶴見緑地線 心斎橋駅 徒歩4分
MITエクシード
- 大阪府大阪市中央区久太郎町1丁目6番5号
- 19.3坪(63.80m²)
- @8,001円/坪
~@12,000円/坪 -
地下鉄堺筋線 堺筋本町駅 徒歩3分
地下鉄中央線 堺筋本町駅 徒歩3分






