JPR堂島ウエスト(旧大阪堂島)(旧電通恒産堂島)/4階 38.65坪 物件コード:C304212
- 電話で取り急ぎ物件情報を聞く
- 0120-366-200
- 物件コードを電話でお伝えください
物件コード:C304212


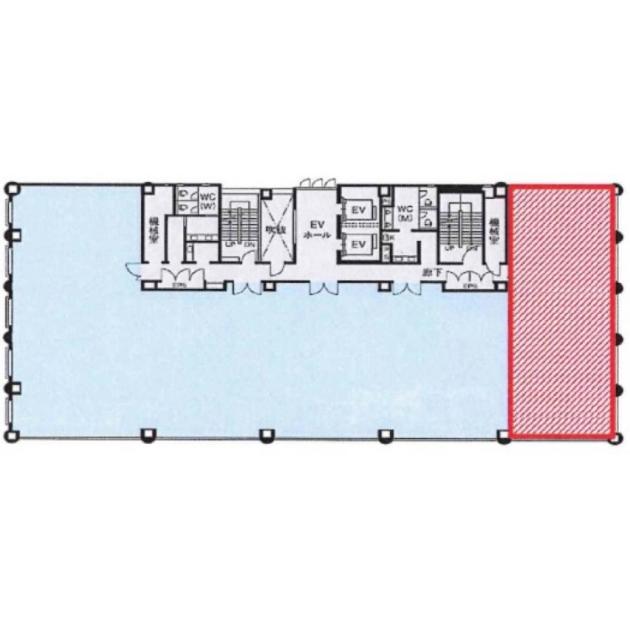
間取り図
おすすめポイント

- 元、株式会社電通の自社ビルであっただけあり、デザイン性のある高級感あふれるエントランスが来客を迎えます。基準階面積は約156坪です。大通りから中に入るので静かな環境ですが、堂島地下街出口から徒歩数分ですので交通アクセスも恵まれています。
ストリートビューを表示 ▼
- この物件の賃料の価格帯(共益費込)
- この部屋は成約済みです
JPR堂島ウエスト(旧大阪堂島)(旧電通恒産堂島)のその他の募集階
|
|
賃料はこの物件の価格帯を表示しています。詳しい情報は電話・メールでお問い合わせください!
物件概要
| 物件名 | JPR堂島ウエスト(旧大阪堂島)(旧電通恒産堂島) | ||
|---|---|---|---|
| 住所 | 大阪府大阪市北区堂島2丁目3番5号 | ||
| 構造 (規模) | 鉄骨・鉄筋コンクリート造・陸屋根7階建地下1階 | ||
| 坪数 | 38.65坪 | 築年月 | 1996年7月 |
| 階数 | 4階 | 空調タイプ | 個別 |
| 保証金 | - | ||
| 敷金 | - | 礼金 | - |
| 沿線・最寄駅 |
地下鉄四つ橋線 西梅田駅 徒歩5分 (西梅田駅の賃貸事務所) JR大阪環状線 大阪駅 徒歩9分 (大阪駅の賃貸事務所) JR東西線 北新地駅 徒歩5分 (北新地駅の賃貸事務所) |
||
| 設備詳細 |
|
||
| EV基数 | 2基 | 人荷EV基数 | - |
| こだわり条件 |
|
||
| 備考 | 2018年4月から新規募集された物件で、元株式会社電通の自社ビルです。2014年空調リニューアル済み。 | ||
| アクセス | 新大阪駅まで電車18分 大阪駅梅田駅まで電車12分 関西空港まで電車60分、車45分 伊丹空港まで車20分 高速入口:環状線堂島・中之島入口 |
||
この物件の募集フロア
JPR堂島ウエスト(旧大阪堂島)(旧電通恒産堂島)
部屋の詳細動画
パノラマビュー
- この物件へのお問い合わせはこちら


〒541-0048
大阪市中央区瓦町3丁目4番3号
瓦町公洋ビル6階
TEL:06-6231-4600
FAX:06-6231-4630
- 電話で取り急ぎ物件情報を聞く

- 物件コード:C304212
- 物件コードを電話でお伝えください
類似物件のご紹介
「JPR堂島ウエスト(旧大阪堂島)(旧電通恒産堂島)」とエリア、賃料、広さが類似した物件をご紹介しております。
フジヒサFJ中之島
- 大阪府大阪市北区中之島4丁目3番25号
- 33.38坪(110.35m²)
- @15,001円/坪
~@20,000円/坪 -
京阪線(本線・中之島線) 中之島駅 徒歩1分
JR東西線 新福島駅 徒歩7分
堂島アクシス
- 大阪府大阪市北区堂島浜2丁目2番28号
- 35.88坪(118.61m²)
- @15,001円/坪
~@20,000円/坪 -
地下鉄四つ橋線 西梅田駅 徒歩6分
京阪線(本線・中之島線) 渡辺橋駅 徒歩2分
フジヒサFJ中之島
- 大阪府大阪市北区中之島4丁目3番25号
- 33.38坪(110.35m²)
- @15,001円/坪
~@20,000円/坪 -
京阪線(本線・中之島線) 中之島駅 徒歩1分
JR東西線 新福島駅 徒歩7分






