東興/8階 5.74坪 物件コード:G107001
- 電話で取り急ぎ物件情報を聞く
- 0120-366-200
- 物件コードを電話でお伝えください
物件コード:G107001
ストリートビューを表示 ▼
- この物件の賃料の価格帯(共益費込)
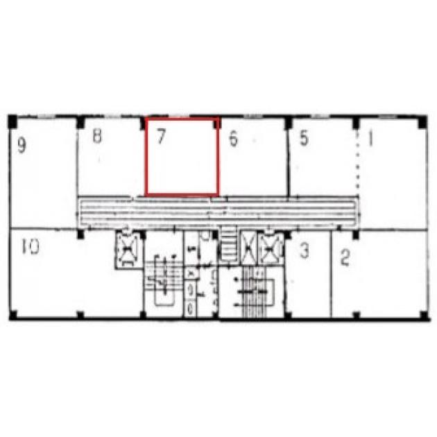
- この部屋は成約済みです
東興のその他の募集階
賃料はこの物件の価格帯を表示しています。詳しい情報は電話・メールでお問い合わせください!
物件概要
| 物件名 | 東興 | ||
|---|---|---|---|
| 住所 | 大阪府大阪市天王寺区真田山町2番2号 | ||
| 構造 (規模) | 鉄筋コンクリート造地上9階建 | ||
| 坪数 | 5.74坪 | 築年月 | 1970年8月30日 |
| 階数 | 8階 | 空調タイプ | 個別 |
| 保証金 | - | ||
| 敷金 | - | 礼金 | - |
| 沿線・最寄駅 |
JR大阪環状線 玉造駅 徒歩5分 (玉造駅の賃貸事務所) 地下鉄長堀鶴見緑地線 玉造駅 徒歩4分 (玉造駅の賃貸事務所) JR大阪環状線 鶴橋駅 徒歩7分 (鶴橋駅の賃貸事務所) |
||
| 設備詳細 |
|
||
| EV基数 | 2基 | 人荷EV基数 | - |
| こだわり条件 |
|
||
| 備考 | |||
| アクセス | |||
この物件の募集フロア
- この物件へのお問い合わせはこちら


〒541-0048
大阪市中央区瓦町3丁目4番3号
瓦町公洋ビル6階
TEL:06-6231-4600
FAX:06-6231-4630
- 電話で取り急ぎ物件情報を聞く

- 物件コード:G107001
- 物件コードを電話でお伝えください
類似物件のご紹介
「東興」とエリア、賃料、広さが類似した物件をご紹介しております。
日宝パール
- 大阪府大阪市中央区内久宝寺町4丁目4番3号
- 5.69坪(18.81m²)
- @3,000円/坪
~@8,000円/坪 -
地下鉄長堀鶴見緑地線 松屋町駅 徒歩4分
地下鉄谷町線 谷町四丁目駅 徒歩5分
サンハイム天満橋
- 大阪府大阪市中央区島町2丁目2番3号
- 5.45坪(18.02m²)
- @3,000円/坪
~@8,000円/坪 -
地下鉄谷町線 天満橋駅 徒歩4分
京阪線(本線・中之島線) 天満橋駅 徒歩5分
サンハイム天満橋
- 大阪府大阪市中央区島町2丁目2番3号
- 5.45坪(18.02m²)
- @3,000円/坪
~@8,000円/坪 -
地下鉄谷町線 天満橋駅 徒歩4分
京阪線(本線・中之島線) 天満橋駅 徒歩5分
ファラン天満橋(旧ユニ天満橋)
- 大阪府大阪市中央区天満橋京町1番27号
- 6.5坪(21.49m²)
- @3,000円/坪
~@8,000円/坪 -
京阪線(本線・中之島線) 天満橋駅 徒歩1分
地下鉄谷町線 天満橋駅 徒歩2分
日宝ニュー天満橋
- 大阪府大阪市中央区島町1丁目2番2号
- 5.39坪(17.82m²)
- @3,000円/坪
~@8,000円/坪 -
地下鉄谷町線 天満橋駅 徒歩1分
京阪線(本線・中之島線) 天満橋駅 徒歩3分








