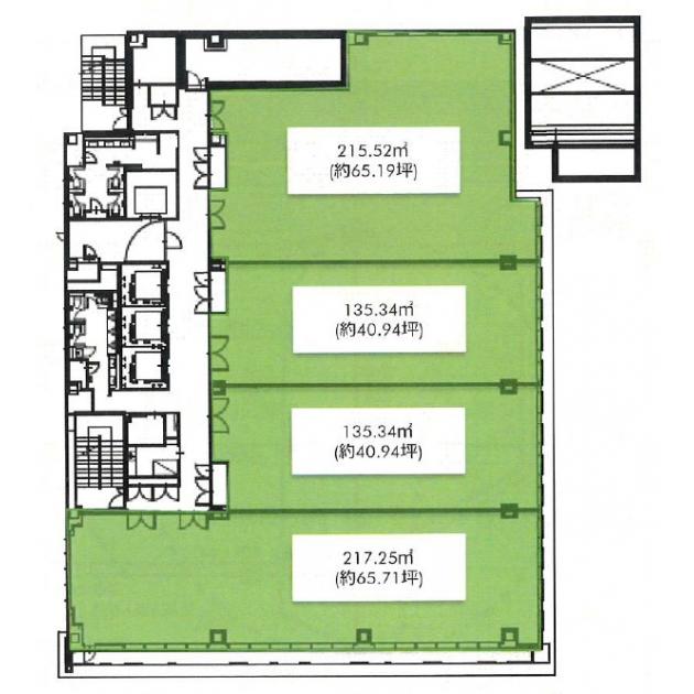
Vianode SHIN-OSAKA(旧GRANODE新大阪)/8階 212.81坪 物件コード:D202117
- 電話で取り急ぎ物件情報を聞く
- 0120-366-200
- 物件コードを電話でお伝えください
物件コード:D202117
ストリートビューを表示 ▼
- この物件の賃料の価格帯(共益費込)
- この部屋は成約済みです
Vianode SHIN-OSAKA(旧GRANODE新大阪)のその他の募集階
|
|
賃料はこの物件の価格帯を表示しています。詳しい情報は電話・メールでお問い合わせください!
物件概要
| 物件名 | Vianode SHIN-OSAKA(旧GRANODE新大阪) | ||
|---|---|---|---|
| 住所 | 大阪府大阪市淀川区西宮原1丁目8番10号 | ||
| 構造 (規模) | 鉄骨造地上11階建 | ||
| 坪数 | 212.81坪 | 築年月 | 2022年2月 |
| 階数 | 8階 | 空調タイプ | 個別 |
| 保証金 | - | ||
| 敷金 | - | 礼金 | - |
| 沿線・最寄駅 |
地下鉄御堂筋線 新大阪駅 徒歩6分 (新大阪駅の賃貸事務所) JR東海道本線 新大阪駅 徒歩6分 (新大阪駅の賃貸事務所) |
||
| 設備詳細 |
|
||
| EV基数 | 3基 | 人荷EV基数 | 1基 |
| こだわり条件 |
|
||
| 備考 | |||
| アクセス | 新大阪駅まで電車6分 大阪駅梅田駅まで電車10分 関西空港まで電車60分、車50分 伊丹空港まで車25分 高速入口:阪神高速11号池田線線加島入口 |
||
この物件の募集フロア
Vianode SHIN-OSAKA(旧GRANODE新大阪)
- この物件へのお問い合わせはこちら


〒541-0048
大阪市中央区瓦町3丁目4番3号
瓦町公洋ビル6階
TEL:06-6231-4600
FAX:06-6231-4630
- 電話で取り急ぎ物件情報を聞く

- 物件コード:D202117
- 物件コードを電話でお伝えください
類似物件のご紹介
「Vianode SHIN-OSAKA(旧GRANODE新大阪)」とエリア、賃料、広さが類似した物件をご紹介しております。
新大阪トラストタワー
- 大阪府大阪市淀川区宮原3丁目5番36号
- 218.6坪(722.64m²)
- @20,001円/坪
~@30,000円/坪 -
地下鉄御堂筋線 新大阪駅 徒歩2分
地下鉄御堂筋線 東三国駅 徒歩7分








